




















Complesso immobiliare adibito ad attività turistico-ricettiva, con annesso lotto di terreno, sito nel Comune di Misiliscemi (in perizia Trapani (TP)), C.da Locogrande, Via Locogrande 61. Locogrande è una piccola frazione, tranquilla e residenziale, situata a circa 10 chilometri a sud-est di Trapani.
Il complesso è costituito da: fabbricato con destinazione turistico-ricettiva stagionale con corte pertinenziale; terreno di 5.060 mq, posto a nord del fabbricato principale, prevalentemente coltivato ad uliveto e su cui insistono anche una piscina ed un fabbricato adibito a reception/bar.
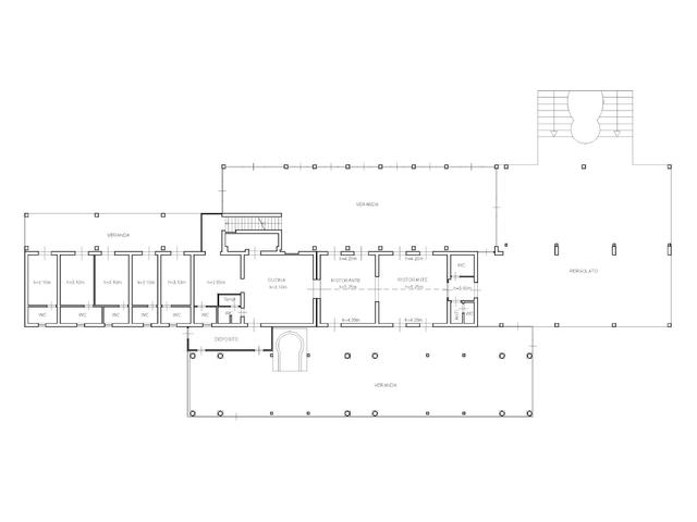
Il fabbricato principale è costituito da più immobili contigui ad una e due elevazioni fuori terra. Piano terra costituito da n.6 mini appartamenti muniti di cucina/angolo cottura, n.2 camere indipendenti con bagno di pertinenza e n.1 mini appartamento non munito di cucina/angolo cottura, per un totale di n.8 unità. In alcune unità è stata sfruttata la massima altezza del fabbricato (ad una elevazione fuori terra) realizzando dei soppalchi in cui sono ubicate le camere da letto. Piano primo raggiungibile per mezzo di un vano scala indipendente, accessibile dall’area esterna, costituito da n.3 mini appartamenti muniti di cucina/angolo cottura, n.2 unità con bagno di pertinenza di cui una con due camere da letto, per un totale di n.5 unità. In due dei tre mini appartamenti sono stati realizzati dei soppalchi dove sono ubicate le camere da letto.
Sono presenti difformità, meglio specificate in perizia (pag 22-23, 30-31).
Per maggiori dettagli consultare la documentazione allegata.
Immobile descritto in perizia come LOTTO 1


































































































