Morbegno
COD. ANNUNCIO 2537939
360
LOCALI 1
A partire da

230.000 €

Ufficio al grezzo in palazzo moderno

A partire da

230.000 €

Morbegno (Sondrio) - Via Ambrosetti Tommaso, 2, 23017 Morbegno SO, Italia

A partire da

230.000 €


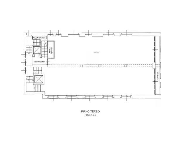
Proponiamo in vendita ufficio al grezzo situato nel cuore del centro storico di Morbegno, in via Tommaso Ambrosetti 2, all’interno di un edificio moderno di recente ristrutturazione.

L’unità è posta al terzo piano, servita da ascensore, e si distingue per le ampie vetrate che garantiscono eccellente luminosità naturale e una piacevole qualità degli ambienti di lavoro.

Attualmente allo stato grezzo, l’ufficio offre la massima libertà di personalizzazione nella distribuzione degli spazi e nelle finiture, risultando ideale per studi professionali, uffici direzionali o attività che ricercano una sede rappresentativa in posizione centrale.

La collocazione nel centro storico assicura visibilità, comodità ai servizi e facile accessibilità, rendendo questa proposta un’ottima opportunità per chi desidera un ufficio moderno e su misura in un contesto di pregio.


Caratteristiche

  • Superficie immobile

    360 m²


  • Numero locali

    1


  • Codice annuncio

    2537939


  • Piano ingresso

    3


  • Piani totali edificio

    6


  • Anno ultima ristrutturazione

    2010



Dotazioni

  • Ascensore


Documenti disponibili

Scarica i documenti disponibili per questo immobile

Come acquistare questo immobile

1. Scarica la documentazione

Scarica e leggi con attenzione tutta la documentazione per partecipare alla compravendita.

2. Fai la tua offerta non vincolante

Indica il prezzo che sei disposto a pagare per questo immobile e lo comunicheremo al referente.

3. Aspetta di essere ricontattato

Se il venditore riterrà adeguata la tua offerta sarai ricontattato per fare, se lo vorrai, un'offerta ufficiale.


Posizione dell'immobile

Scopri dove si trova l'immobile che ti interessa
  • Devi per poter visualizzare la posizione sulla mappa.

Punti di interesse nelle vicinanze

Dai un'occhiata ai punti di interesse della zona
  • Trasporti
    • Stazione ferroviaria188 m
    • Fermata bus208 m
    • Aeroporto15.6 km
  • Scuole
    • Scuola35 m
    • Scuola primaria99 m
    • Scuola secondaria248 m
    • Università248 m
  • Salute
    • Ospedale355 m
    • Farmacia89 m
    • Medico110 m
  • Alimentari
    • Supermercato196 m
    • Ristorante33 m
    • Bar33 m
    • Minimarket33 m
    • Panetteria33 m
  • Servizi
    • Banca6 m
    • Posta240 m
    • ATM6 m
    • Benzinaio358 m
  • Svago
    • Centro commerciale221 m
    • Parco57 m
    • Palestra33 m

Quimmo dà valore alla vendita del tuo immobile

Affidati ai professionisti del Mercato Immobiliare, il tuo immobile sarà la priorità.

Vendilo con noi