











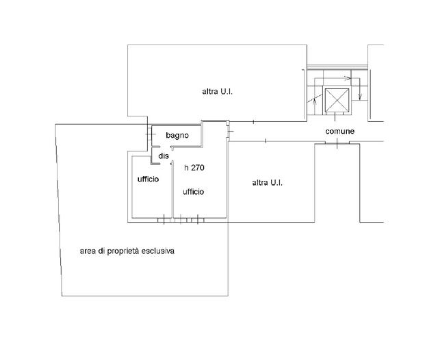
Vendesi ufficio con magazzino a Gallarate (VA), Piazza Papa Giovanni XXIII, 9. Zona centrale, vicino alla stazione ferroviaria. Le unità risultano posizionate al primo piano interrato di un più ampio complesso immobiliare disposto su n. 7 piani fuori terra e n. 2 piani interrati. L’accesso principale avviene attraverso androne condominiale. Il magazzino dispone anche di accesso carrabile da corte comune al quale si accede tramite rampa carraia. Internamente si compongono da due vani open space, dotati di wc con antibagno. Presente impianto di riscaldamento nell’ufficio; impianto elettrico; luce d'emergenza e attacco autopompa condominiale; ascensore condominiale.
SI SEGNALA CHE LA PROPRIETA' VALUTA ANCHE PROPOSTE DI LOCAZIONE
Anno costruzione: 1958
Classe energetica: ”F”
Superficie commerciale: 116 mq
Superficie ufficio: 70 mq
Superficie Magazzino: 154 mq
Piena proprietà:
C/2 (CF): Foglio GA/5 – Particella 1662 – Subalterno 501
A/10 (CF): Foglio GA/5 – Particella 1662 – Subalterno 502
Il prezzo è da intendersi iva esclusa (tipicamente aliquota pari al 22%). La proprietà si rende disponibile all’applicazione del reverse charge IVA.





























