








L'immobile è situato al piano terra di un edificio residenziale, vanta una posizione strategica, trovandosi proprio lungo una delle principali vie di Ferrara. Corso della Giovecca è rinomato per la sua vivace atmosfera e la sua prossimità a tutti i servizi principali, garantendo comodità e accessibilità a residenti e visitatori.
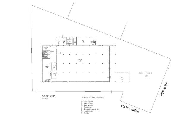
L'immobile dispone di 4 vani ampi e luminosi, ideali per svariate attività commerciali, e due servizi igienici per garantire comfort e funzionalità. Con una superficie di circa 145 mq, questo spazio offre flessibilità per soddisfare diverse esigenze commerciali.
L'immobile è attualmente locato ad un centro estetico, ma verrà liberato il prossimo 31/07/2025.
Classe energetica: D EP gl,nren 443,52kWh/m2 anno
Superficie: c.a. 145 mq
Piena proprietà:
C/1 (CF): Foglio 382 – Particella 507 – Subalterno 28 e 29
Il prezzo è da intendersi iva esclusa (tipicamente aliquota pari al 22%). La proprietà si rende disponibile all’applicazione del reverse charge IVA.
















































































































