

Quimmo è lieta di proporre in vendita una proprietà di prestigio.
Situata in un contesto di grande tranquillità, a circa 3 km da Russi e a 20 minuti d'auto da Ravenna e da Milano Marittima, in una posizione silenziosa con affaccio sulle colline, proponiamo in vendita una villa su tre livelli, edificata nel 2004 con finiture extra capitolato e accessori quali sauna, ascensore interno, sanitari del noto architetto Philippe Stark e predisposizione per la piscina.
L'immobile, a pianta rettangolare, si sviluppa su tre livelli per una superficie commerciale di circa 140 mq per piano ed è così composto:
Al piano terra: ingresso su ampio disimpegno, bagno, salone di 64 mq, cucina abitabile e camera.
Al primo piano si trova un ampio ballatoio, attualmente utilizzato come vano multiuso, ma divisibile in due ampie camere, una camera da letto padronale con cabina armadio e un bagno di oltre 18 mq completo di vasca doppia.
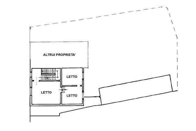
Al piano interrato, alto 2,70 metri, si trovano due ulteriori vani adibiti a camera, un bagno, una lavanderia, una cantina/vano multiuso e un vano in cui si trova la sauna.
Tutti i piani sono collegati tra loro da una scala elicoidale di grande impatto visivo, ampia e in muratura, e da un impianto elevatore.
L'immobile è esternamente libero su quattro lati e circondato da un ampio parco di 5.000 mq. È già presente la predisposizione per la realizzazione di una piscina scoperta e la proprietà ha una capacità edificatoria residua di circa 300 mq, che la rende appetibile sia per famiglie numerose sia per attività ricettive, ristorative o per eventi.
Si tratta di un oggetto unico nel suo genere, in eccellenti condizioni generali, per cui se ne consiglia caldamente la visione.





































































































































