
















Proponiamo in vendita un ampio compendio commerciale/logistico situato in posizione strategica sulla Strada Statale 96, nei pressi di Modugno, a pochi minuti dallo svincolo autostradale A14 e dalla tangenziale di Bari.
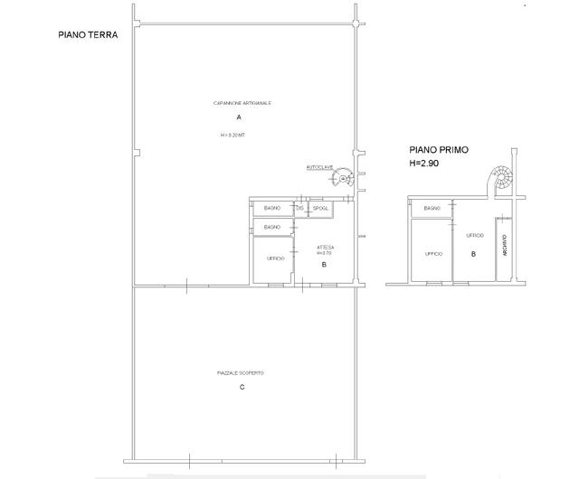
L'immobile, con struttura portante in cemento armato prefabbricato altezza minima 7,40 e massima 7,70 metri, si sviluppa su una superficie coperta di circa 2.800 mq. campate libere molto ampie, con antistante e circostante piazzale asfaltato della superficie complessiva di mq. 9.000 circa destinato a parcheggio a servizio anche dell’altro capannone adiacente, garantendo massima flessibilità distributiva per qualsiasi esigenza: logistica, grande distribuzione, showroom o trasformazione multi settore.
Caratteristiche principali
• Open space luminosissimo con ampie campate e altezza utile interna importante
• Pavimentazione industriale in buono stato con piastrellatura su tutta la superficie
• Impianto di climatizzazione e trattamento aria canalizzato già installato
• Preesistenze da supermercato / GDO (corsie, area casse numerate, cabina elettrica dedicata)
• Uffici e locali tecnici separati, facilmente riconvertibili
• Impianto antincendio con uscite di sicurezza, segnaletica, idranti e centraline attive
• Accessi carrabili e pedonali, adatti per flussi intensivi
Destinazioni d’uso ideali:
• Cash & carry | showroom multimarca
• Logistica urbana, centro smistamento
• GDO, supermercati, discount, punti vendita hobbistica o bricolage
• Palestre, sport center, concessionari, centri assistenza tecnica
Punti di forza:
• Accessibilità diretta da SS 96 – collegamento immediato con Bari e autostrada
• Grande visibilità dalla viabilità principale
• Spazi già predisposti a flussi merce/persone elevati
• Impianti presenti (da rivedere) e struttura portante versatile
• Un'opportunità che non resterà disponibile a lungo.
• Siti con queste caratteristiche non si trovano facilmente sul mercato: spazi ampi, struttura già predisposta, visibilità diretta dalla statale, accesso immediato alla rete autostradale e massima flessibilità d’uso.
Contattaci oggi stesso per ricevere maggiori dettagli, visionare l’immobile e valutare insieme come trasformarlo nella nuova sede operativa della tua attività.
Il tempo giusto per agire è adesso.


































































































