




















Proponiamo in vendita ex capannone produttivo situato ad Arezzo, in posizione strategica lungo la strada statale SR71, facilmente raggiungibile e ben collegato alle principali vie di comunicazione.
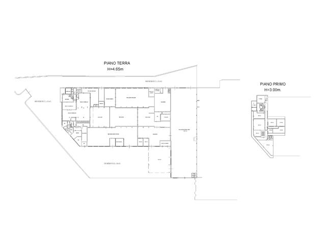
Il complesso immobiliare è composto da due fabbricati principali e alcuni edifici accessori, per una superficie complessiva di circa 5.601 mq. Il corpo principale include una palazzina adibita a uffici e servizi e un ampio capannone destinato alla produzione, mentre sul retro si trovano un magazzino e strutture accessorie utili al supporto dell’attività produttiva.
L’immobile è interamente recintato e dotato di due grandi cancelli carrabili, che garantiscono sicurezza e facilità di accesso ai mezzi pesanti. L’ampia area esterna di pertinenza rappresenta un valore aggiunto, ideale per parcheggi, operazioni di carico e scarico o eventuali ampliamenti futuri.
Grazie alla posizione visibile sulla SR71, alla versatilità degli spazi e alle ampie superfici disponibili, il complesso si presta perfettamente per attività industriali, artigianali o logistiche, costituendo un’ottima opportunità di investimento per imprese alla ricerca di una soluzione completa e funzionale ad Arezzo.



























































