














204.900 €

































204.900 €
Prezzo di perizia
293.000 €
- 30%
Alano di Piave (Belluno) - Via Dante Alighieri, 15, Setteville BL, Italia
204.900 €
Prezzo di perizia
293.000 €
- 30%
Appartamenti siti a Setteville (ex Alano di Piave) (BL), frazione Fener, via Dante Alighieri 15. Il contesto è periferico e poco trafficato. La zona è collinare, ben servita e caratterizzata da abitazioni, botteghe e servizi primari. Le unità sono parte di un edificio ristrutturato nel 1988 e dotato di corte comune per parcheggio.
Alloggi distribuiti ai piani primo (sub 5 e 6) e secondo (sub 7 e 8), serviti da scala e ben illuminati.
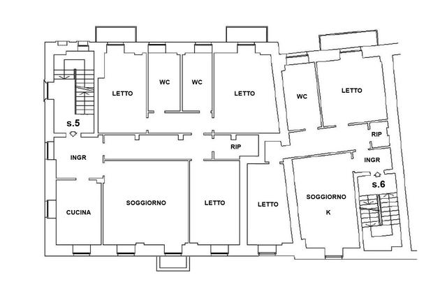
Sub 5 con soggiorno, cucina, tre camere letto, ripostiglio, due bagni, disimpegni e tre balconi.
Sub 6 con soggiorno con angolo cottura, due camere letto, ripostiglio, bagno e un balcone.
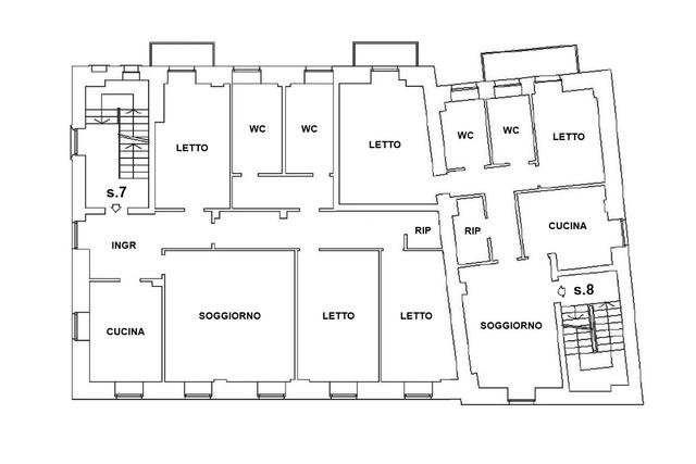
Sub 7 con soggiorno, cucina, tre camere letto, ripostiglio, due bagni, disimpegni e un balcone.
Sub 8 con soggiorno, ampia cucina, due camere letto, ripostiglio, due bagni e due balconi.
Finiture standard. Impianti sottotraccia. Riscaldamento autonomo con caldaia e radiatori.
Inclusi ambienti ad uso soffitta al piano terzo sottotetto, servito da scale condominiali.
Superficie commerciale complessiva: 555,40 mq
Per maggiori dettagli consultare la documentazione allegata.
Immobili descritti nella perizia allegata come LOTTI 1, 2, 3 e 4
Termine raccolta offerte
27/01/2026, 12:00
Data apertura asta
28/01/2026, 09:30
Offerta minima
204.900 €
Base d'asta
293.000 €
Modalità di vendita
sincrona mista
Numero esperimento di vendita
1
Superficie immobile
555 m²
Numero locali
4
Codice annuncio
2537826
Piano ingresso
1
Piani totali edificio
5
Tipo di cucina
abitabile
Pavimentazione zona giorno
ceramica
Pavimentazione zona notte
ceramica
Anno costruzione
1930
Anno ultima ristrutturazione
1988
Riscaldamento
autonomo
Generatore di calore
caldaia
Tipo impianto di riscaldamento
radiatori
Cantina
Parcheggio privato
Clicca sul bottone “Partecipa all'asta” e segui, passo dopo passo, le istruzioni per predisporre la documentazione necessaria e compilare la tua prima offerta.
Una volta inviata la tua offerta, il Professionista vaglierà la documentazione che hai presentato. In caso di validazione, potrai partecipare alla fase rilanci.
Una volta che l'asta viene avviata, potrai effettuare dei rilanci nel caso in cui la tua offerta non fosse la più alta.
Se, al termine dell'asta, la tua offerta sarà la migliore dovrai solo completare l'iter di aggiudicazione.

Effettua la richiesta per ricevere l'assistenza gratuita e personalizata.

Un nostro esperto ti chiamerà subito per informarti sul materiale necessario per preparare l'offerta.

Ti guideremo, con una call dedicata, in tutta la compilazione dell'offerta tramite convidisione dello schermo.
Affidati ai professionisti del Mercato Immobiliare, il tuo immobile sarà la priorità.
Vendilo con noi














Appartamento (sub 8) sito a Setteville (ex Alano di Piave) (BL), frazione Fener, via Dante Alighieri 15. Il contesto è periferico e poco trafficato. La zona è collinare, ben servita e caratterizzata da abitazioni, botteghe e servizi primari. L’unità è parte di un edificio ristrutturato nel 1988 e dotato di corte comune per parcheggio.
Alloggio al piano secondo servito da vano scala, ben illuminato sui due lati esposti esternamente.
Ingresso su soggiorno, ampia cucina, due camere letto, ripostiglio, due bagni e due balconi.
Finiture standard. Impianti sottotraccia. Riscaldamento autonomo con caldaia e radiatori.
Incluso vano ad uso soffitta al piano terzo sottotetto, servito da scala condominiale.
Superficie commerciale: 109,80 mq
Per maggiori dettagli consultare la documentazione allegata.
Immobile descritto nella perizia allegata come LOTTO 4















Appartamento (sub 7) sito a Setteville (ex Alano di Piave) (BL), frazione Fener, via Dante Alighieri 15. Il contesto è periferico e poco trafficato. La zona è collinare, ben servita e caratterizzata da abitazioni, botteghe e servizi primari. L’unità è parte di un edificio ristrutturato nel 1988 e dotato di corte comune per parcheggio.
Alloggio al piano secondo servito da vano scala, ben illuminato sui tre lati esposti esternamente.
Ingresso, soggiorno, cucina, tre camere letto, ripostiglio, due bagni, disimpegni e un balcone.
Finiture standard. Impianti sottotraccia. Riscaldamento autonomo con caldaia e radiatori.
Incluso vano ad uso soffitta al piano terzo sottotetto, servito da scala condominiale.
Superficie commerciale: 169,80 mq
Per maggiori dettagli consultare la documentazione allegata.
Immobile descritto nella perizia allegata come LOTTO 3












Appartamento (sub 6) sito a Setteville (ex Alano di Piave) (BL), frazione Fener, via Dante Alighieri 15. Il contesto è periferico e poco trafficato. La zona è collinare, ben servita e caratterizzata da abitazioni, botteghe e servizi primari. L’unità è parte di un edificio ristrutturato nel 1988 e dotato di corte comune per parcheggio.
Alloggio al piano primo servito da vano scala, ben illuminato sui due lati esposti esternamente.
Ingresso, soggiorno con angolo cottura, due camere letto, ripostiglio, bagno e un balcone.
Finiture standard. Impianti sottotraccia. Riscaldamento autonomo con caldaia e radiatori.
Incluso vano ad uso soffitta al piano terzo sottotetto, servito da scala condominiale.
Superficie commerciale: 102,40 mq
Per maggiori dettagli consultare la documentazione allegata.
Immobile descritto nella perizia allegata come LOTTO 2















Appartamento (sub 5) sito a Setteville (ex Alano di Piave) (BL), frazione Fener, via Dante Alighieri 15. Il contesto è periferico e poco trafficato. La zona è collinare, ben servita e caratterizzata da abitazioni, botteghe e servizi primari. L’unità è parte di un edificio ristrutturato nel 1988 e dotato di corte comune per parcheggio.
Alloggio al piano primo servito da vano scala, ben illuminato sui tre lati esposti esternamente.
Ingresso, soggiorno, cucina, tre camere letto, ripostiglio, due bagni, disimpegni e tre balconi.
Finiture standard. Impianti sottotraccia. Riscaldamento autonomo con caldaia e radiatori.
Incluso vano ad uso soffitta al piano terzo sottotetto, servito da scala condominiale.
Superficie commerciale: 173,40 mq
Per maggiori dettagli consultare la documentazione allegata.
Immobile descritto nella perizia allegata come LOTTO 1


















Appartamenti siti ad Arsiè (BL), via Crociera 25. Il contesto è centrale con traffico locale. La zona è di montagna, ben servita e caratterizzata da edifici con appartamenti e piccole botteghe. Le unità sono parte di un antico edificio completamente ricostruito nel 1974, sviluppato su quattro piani fuori terra, oltre ad interrato.
Alloggi distribuiti ai piani primo (sub 4) e secondo (sub 6), serviti da vano scala e ben illuminati.
Piano primo con ingresso, soggiorno, cucina, tre camere, ripostiglio, bagno e quattro aggetti.
Piano secondo con ingresso, soggiorno, cucina, tre camere, ripostiglio, wc e quattro aggetti.
Finiture standard. Impianti sottotraccia. Riscaldamento autonomo in disuso da molti anni.
Inclusi vani uso soffitta al piano terzo sottotetto e cantine finestrate al piano interrato.
Superficie commerciale complessiva: 329,40 mq
Per maggiori dettagli consultare la documentazione allegata.
Immobili descritti nella perizia allegata come LOTTO 1 e LOTTO 2















Appartamento (sub 6) sito ad Arsiè (BL), via Crociera 25. Il contesto è centrale con traffico locale. La zona è di montagna, ben servita e caratterizzata da edifici con appartamenti e piccole botteghe. L’unità è parte di un antico edificio completamente ricostruito nel 1974, sviluppato su quattro piani fuori terra, oltre ad interrato.
Alloggio al piano secondo servito da vano scala, ben illuminato sui tre lati esposti esternamente.
Ingresso, ampio soggiorno, cucina, tre camere letto, ripostiglio, un bagno e quattro aggetti.
Finiture standard. Impianti sottotraccia. Riscaldamento autonomo in disuso da molti anni
Inclusi soffitta al piano terzo sottotetto e cantinetta finestrata al piano interrato.
Superficie commerciale: 159,30 mq
Per maggiori dettagli consultare la documentazione allegata.
Immobile descritto nella perizia allegata come LOTTO 2















Appartamento (sub 4) sito ad Arsiè (BL), via Crociera 25. Il contesto è centrale con traffico locale. La zona è di montagna, ben servita e caratterizzata da edifici con appartamenti e piccole botteghe. L’unità è parte di un antico edificio completamente ricostruito nel 1974, sviluppato su quattro piani fuori terra, oltre ad interrato.
Alloggio al piano primo servito da vano scala, ben illuminato sui tre lati esposti esternamente.
Ingresso, ampio soggiorno, cucina, tre camere letto, ripostiglio, un bagno e quattro aggetti.
Finiture standard. Impianti sottotraccia. Riscaldamento autonomo in disuso da molti anni
Inclusi soffitta al piano terzo sottotetto e cantinetta finestrata al piano interrato.
Superficie commerciale: 170,10 mq
Per maggiori dettagli consultare la documentazione allegata.
Immobile descritto nella perizia allegata come LOTTO 1


















Appartamento con garage e locali accessori, sito nel Comune di Mel (BL), Corso XXXI Ottobre n.18. Tali beni risultano inseriti in un fabbricato di tre piani fuori terra, con destinazione d’uso commerciale e residenziale. Corso XXXI Ottobre è una strada centrale, vicino alla piazza principale del paese. La zona è caratterizzata da edifici storici e un'atmosfera tranquilla e pittoresca.
L’appartamento è situato al piano secondo, ed è composto internamente da ingresso, cucina, bagno, tre stanze e ripostiglio.
Completano la proprietà una cantina, una soffitta ed un garage; quest’ultimo posizionato al piano terra in corpo staccato rispetto all’immobile di cui è parte l’appartamento.
Gli immobili si presentano con finiture e soluzioni tecnologiche tipiche dell’epoca di realizzazione e risultano non utilizzati da tempo.
Sono presenti difformità, meglio specificate in perizia (pag. 8 a 10).
Per maggiori dettagli consultare la documentazione allegata.
Bene descritto in perizia come LOTTO 4.




















Appartamento con garage e locali accessori, sito nel Comune di Mel (BL), Corso XXXI Ottobre n.18. Tali beni risultano inseriti in un fabbricato di tre piani fuori terra, con destinazione d’uso commerciale e residenziale. Corso XXXI Ottobre è una strada centrale, vicino alla piazza principale del paese. La zona è caratterizzata da edifici storici e un'atmosfera tranquilla e pittoresca.
L’appartamento è situato al piano primo, ed è composto internamente da ingresso, cucina, bagno, tre stanze ed un ripostiglio.
Completano la proprietà una cantina, una soffitta ed un garage; quest’ultimo posizionato al piano terra in corpo staccato rispetto all’immobile di cui è parte l’appartamento.
Gli immobili si presentano con finiture e soluzioni tecnologiche tipiche dell’epoca di realizzazione e risultano non utilizzati da tempo.
Sono presenti difformità, meglio specificate in perizia (pag. 8 a 10).
Per maggiori dettagli consultare la documentazione allegata.
Bene descritto in perizia come LOTTO 2.





































Ricevi i nuovi annunci e i nuovi servizi di Quimmo prima di tutti gli altri
Resta aggiornatoAbilio S.p.A. Capitale sociale i.v. Euro 60.975,00 | Sede legale: Via Galileo Galilei n°6, 48018 Faenza (RA) | Codice fiscale e Nr. Iscrizione Registro delle Imprese di Ravenna: 02704840392 | Numero REA RA: 224830 | Società appartenente al Gruppo IVA 'illimity' Partita IVA N. 12020720962 | Società soggetta all’attività di direzione e coordinamento di Banca Ifis S.p.A. | Società iscritta alla sezione A dell'elenco siti web autorizzati dal Ministero della Giustizia alla pubblicità delle aste giudiziarie - p.d.g. 18/05/2022 | Società iscritta al n.68 del Registro Gestori vendite telematiche del Ministero della Giustizia - p.d.g. 01/04/2022 | www.abilio.com | info@abilio.com
Termini e condizioni | Informativa privacy | Informativa cookies | - Copyright © Abilio S.p.A.
Questo sito è protetto da reCAPTCHA e si applicano le Norme sulla privacy e i Termini di servizio di Google.