









Fabbricato residenziale e magazzino, siti nel Comune di Barbarano Mossano (VI), Fraz. Barbarano Vicentino, Via Scaranto n.8. La zona è caratterizzata da un ambiente tranquillo e pittoresco, immerso nella bellezza naturale dei Colli Berici. È un luogo ideale per chi ama la natura e cerca un rifugio lontano dal caos cittadino. Ben collegata con altre frazioni e comuni vicini, rendendo facile l'accesso ai servizi e alle attività locali.
Il fabbricato residenziale è costituito da due unità con corte comune.
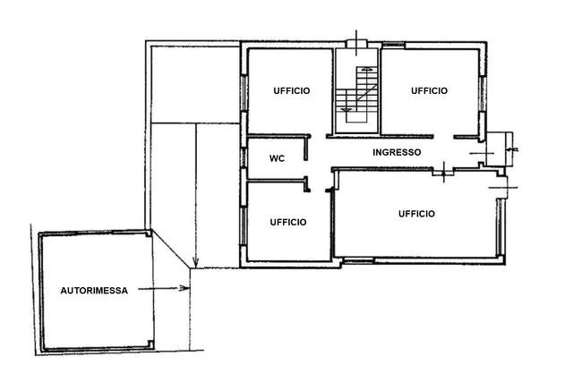
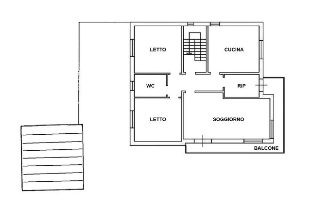
Sub 4. Composto al piano terra da soggiorno, cucina, disimpegno, bagno, camera e ripostiglio. Al piano primo sottostrada è presente una cantina accessibile dal ripostiglio.
Sub 5. Distribuito su quattro piani fuori terra. Al piano terra è composto da ingresso, due vani, cucina, ripostiglio, disimpegno, bagno e cantina. Al piano primo: quattro vani, due ripostigli, due bagni, portico, terrazzo e disimpegni. Al piano secondo: disimpegno, due vani, due ripostigli, un wc ed un terrazzo. Al piano terzo quattro vani sottotetto.
Il magazzino è un fabbricato di vecchio impianto avente consistenza catastale di 16 mq, insistente su una particella di terreno con giacitura pianeggiante di forma trapezoidale con superficie catastale pari a 87 mq.
Tutti i fabbricati necessitano di ristrutturazione.
Per maggiori dettagli consultare la documentazione allegata.
Beni descritti in perizia come BLOCCO B e BLOCCO C
Sono compresi nella vendita i proporzionali diritti di comproprietà su beni comuni e parti di uso comune.





































































































































































