
















1/17
Alessandria (Alessandria) - Via Pontida, N. 3-5-7
Da21.500 €
608 m24Locali
Negozio sito ad Alessandria (AL), via Pontida 3-5-7, angolo via Cremona. Il contesto è centrale con traffico regolare. La zona è urbanizzata e dotata di ogni servizio, tipica del centro storico con palazzi storici utilizzati per scopi polifunzionali. Possibilità di parcheggio lungo la strada e nella vicina Piazza della Libertà. Area ben collegata alla rete infrastrutturale periferica. L’unità è parte di un grande palazzo con cortile interno, sviluppato su cinque piani fuori terra, oltre a livello scantinato.
Sviluppo principale al piano terra, oltre a livello ammezzato e vani di servizio interrati.
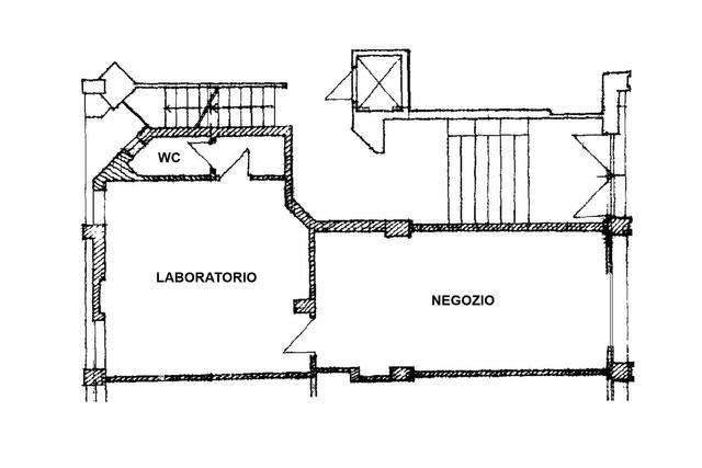
Accesso clientela fronte strada oltre ad entrata di servizio tramite androne condominiale. Negozio costituito da più stanze, con magazzini, balconata, uffici, servizi wc e cantine. Piani internamente collegati da scale.
Finiture standard. Impianti in canalette. Climatizzazione e impianto antincendio.
Immobile affittato. Condizioni buone. Beni mobili esclusi dalla vendita.
Immobile descritto nella tabella di riepilogo come LOTTO A
Superficie commerciale: 608 mq
PIANO TERRA, AMMEZZATO e INTERRATO
Negozio: 273 mq
Soppalco: 158 mq
Magazzini/cantine: 387 mq
Piena proprietà di:
CF: Foglio 268 – Particella 3209 – Subalterni 21 e 38 (graffati) – C/1
CF: Foglio 268 – Particella 3209 – Subalterno 37 – C/2
CF: Foglio 268 – Particella 3209 – Subalterno 1 – A/4
Sviluppo principale al piano terra, oltre a livello ammezzato e vani di servizio interrati.
Accesso clientela fronte strada oltre ad entrata di servizio tramite androne condominiale. Negozio costituito da più stanze, con magazzini, balconata, uffici, servizi wc e cantine. Piani internamente collegati da scale.
Finiture standard. Impianti in canalette. Climatizzazione e impianto antincendio.
Immobile affittato. Condizioni buone. Beni mobili esclusi dalla vendita.
Immobile descritto nella tabella di riepilogo come LOTTO A
Superficie commerciale: 608 mq
PIANO TERRA, AMMEZZATO e INTERRATO
Negozio: 273 mq
Soppalco: 158 mq
Magazzini/cantine: 387 mq
Piena proprietà di:
CF: Foglio 268 – Particella 3209 – Subalterni 21 e 38 (graffati) – C/1
CF: Foglio 268 – Particella 3209 – Subalterno 37 – C/2
CF: Foglio 268 – Particella 3209 – Subalterno 1 – A/4


























































































































