





















1/22
Fabriano (Ancona) - Via Poio, N. 6
Da20.358 €
76 m23Locali
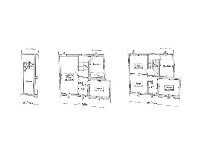
Oggetto della presente è un appartamento sito a Fabriano (AN), via Poio n. 6, situato nel centro storico del Comune a pochi metri dalla Piazza Municipale. L’immobile è ubicato al piano primo di un edificio storico accessibile dal corso mediante una scalinata, oppure da Via del Polo. Internamente si compone di tre camere, un bagno a fianco dell'Ingresso, un corridoio ed una loggia chiusa dove troviamo un altro piccolo servizio Igienico. Nel complesso l'unità si presenta In discrete condizioni, con pavimentazione In cotto ed Infissi In legno, con caldaia a metano e caloriferi In alluminio, ed è completamente priva di arredi. Si rilevano delle fessurazioni In alcune zone, provocate probabilmente dal recente terremoto del 2016.
Superficie commerciale: 76 mq
Immobile identificato in perizia allegata come lettera “A”
- Piena Proprietà A/2(CF) Foglio 136 - Particella 917 - Subalterno 20
- Piena Proprietà A/2(CF) Foglio 136 - Particella 919 - Subalterno 16
Superficie commerciale: 76 mq
Immobile identificato in perizia allegata come lettera “A”
- Piena Proprietà A/2(CF) Foglio 136 - Particella 917 - Subalterno 20
- Piena Proprietà A/2(CF) Foglio 136 - Particella 919 - Subalterno 16



























































































































































