














1/15
Palermo (Palermo) - Via Maresciallo Guglielmo Pecori Giraldi, N. 28
Da11.757 €
133 m25Locali1Bagno
Quota di 1/3 di appartamento sito a Palermo (PA), in via Maresciallo Guglielmo Pecori Giraldi n.28. L’immobile si trova in una zona ad alta densità commerciale, con la presenza di banche, uffici postali, farmacie, impianti sportivi e scuole nelle vicinanze. È ben servito dalla linea del tram, con una fermata situata proprio all’ingresso del palazzo. L’unità
L’unità immobiliare fa parte di un complesso edilizio composto da due grandi corpi di fabbrica e diversi corpi bassi ed è accessibile tramite un cancello in ferro che conduce a un cortile condominiale, dal quale si raggiunge la portineria della scala B.
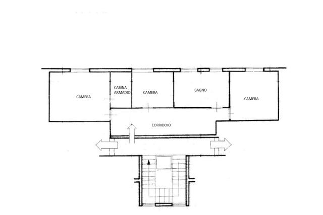
L’appartamento, posto al piano quinto dell’ edificio condominiale, è così composto: ingresso, corridoio di disimpegno, servizio igienico-sanitario con finestra per aerazione naturale, cucina con accesso al balcone, quattro vani, tutti dotati di finestre e/o aperture e ripostiglio.
L’altezza interna degli ambienti è di circa 2,90 m, ad eccezione del bagno, controsoffittato, con un’altezza di circa 2,70 m. Le pareti del bagno e della cucina sono rivestite in piastrelle di ceramica, mentre le altre stanze sono intonacate e colorate con idropittura lavabile. I pavimenti sono rivestiti in piastrelle di ceramica. Le porte interne sono in legno e legno-vetro.
Le finiture interne si presentano in discreto stato di conservazione. Gli infissi esterni sono in alluminio e vetro, con avvolgibili in PVC. I prospetti esterni sono intonacati e verniciati con idropittura, anch’essi in discreto stato di conservazione.
Per maggiori dettagli consultare i documenti allegati.
Si segnala la vendita di beni mobili sul sito INDUSTRIALDISCOUNT – Asta 8384_Lotto 2
Bene descritto in perizia come LOTTO 2
L’unità immobiliare fa parte di un complesso edilizio composto da due grandi corpi di fabbrica e diversi corpi bassi ed è accessibile tramite un cancello in ferro che conduce a un cortile condominiale, dal quale si raggiunge la portineria della scala B.
L’appartamento, posto al piano quinto dell’ edificio condominiale, è così composto: ingresso, corridoio di disimpegno, servizio igienico-sanitario con finestra per aerazione naturale, cucina con accesso al balcone, quattro vani, tutti dotati di finestre e/o aperture e ripostiglio.
L’altezza interna degli ambienti è di circa 2,90 m, ad eccezione del bagno, controsoffittato, con un’altezza di circa 2,70 m. Le pareti del bagno e della cucina sono rivestite in piastrelle di ceramica, mentre le altre stanze sono intonacate e colorate con idropittura lavabile. I pavimenti sono rivestiti in piastrelle di ceramica. Le porte interne sono in legno e legno-vetro.
Le finiture interne si presentano in discreto stato di conservazione. Gli infissi esterni sono in alluminio e vetro, con avvolgibili in PVC. I prospetti esterni sono intonacati e verniciati con idropittura, anch’essi in discreto stato di conservazione.
Per maggiori dettagli consultare i documenti allegati.
Si segnala la vendita di beni mobili sul sito INDUSTRIALDISCOUNT – Asta 8384_Lotto 2
Bene descritto in perizia come LOTTO 2














































































































































































































