
















1/17
Biccari (Foggia) - località San Pietro
Da116.471 €
1143 m29Locali
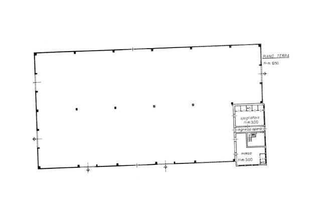
Vendesi opificio industriale in stato di abbandono con terreni pertinenziali ed annesso fabbricato rurale diroccato sito in Biccari (FG) località San Pietro. Il lotto è costituito da un capannone industriale, precedentemente attrezzato per la produzione di biscotti e grissini, dal circostante terreno al proprio servizio e da un fabbricato rurale diroccato. Il capannone è composto da un piano seminterrato, un piano terra leggermente rialzato, e di un parziale piano primo.
I terreni sono in parte destinati ad area di pertinenza dell’opificio, in parte costituente attinenza scoperta dell’opificio ed area di manovra, parte a strade di accesso e rimanenza ad uliveto.
Per quanto riguarda i locali accessori, sono sovrapposti e in origine comunicanti a mezzo di scalinata interna
(ora diroccata). Sono attaccati ad altra porzione di fabbricato appartenete a terzi. I locali sono privi di servizi igienici e di qualsiasi tipo di impianto e la sua destinazione originaria era a deposito.
Le finiture sono inesistenti; tutti i beni ubicati si presentano in uno stato di totale abbandono e vandalizzati, con vetri rotti, porte di accesso divelte o totalmente rovinate.
Il bene è descritto in perizia come Lotto 1.
Superfici commerciali:
Opificio: 1.143 mq
Terreni: 9.762 mq.
Piena proprietà di:
Opificio (CF): Foglio 24 - Particella 420 - Cat D/1
Fabbricato Rurale (CF): Foglio 24 - Particella 406 - Cat. A/4
Terreni (CT): Foglio 24 - Particelle 456 (livellario), 501, 502, 503 (livellario), 504 (livellario), 539, 540
I terreni sono in parte destinati ad area di pertinenza dell’opificio, in parte costituente attinenza scoperta dell’opificio ed area di manovra, parte a strade di accesso e rimanenza ad uliveto.
Per quanto riguarda i locali accessori, sono sovrapposti e in origine comunicanti a mezzo di scalinata interna
(ora diroccata). Sono attaccati ad altra porzione di fabbricato appartenete a terzi. I locali sono privi di servizi igienici e di qualsiasi tipo di impianto e la sua destinazione originaria era a deposito.
Le finiture sono inesistenti; tutti i beni ubicati si presentano in uno stato di totale abbandono e vandalizzati, con vetri rotti, porte di accesso divelte o totalmente rovinate.
Il bene è descritto in perizia come Lotto 1.
Superfici commerciali:
Opificio: 1.143 mq
Terreni: 9.762 mq.
Piena proprietà di:
Opificio (CF): Foglio 24 - Particella 420 - Cat D/1
Fabbricato Rurale (CF): Foglio 24 - Particella 406 - Cat. A/4
Terreni (CT): Foglio 24 - Particelle 456 (livellario), 501, 502, 503 (livellario), 504 (livellario), 539, 540




















