

















Proponiamo in vendita a Bovolone, in Via Madonna 276, un complesso produttivo composto da più fabbricati ad uso industriale-artigianale con ampie superfici coperte e area esterna pertinenziale.
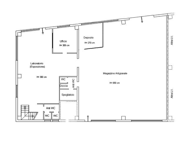
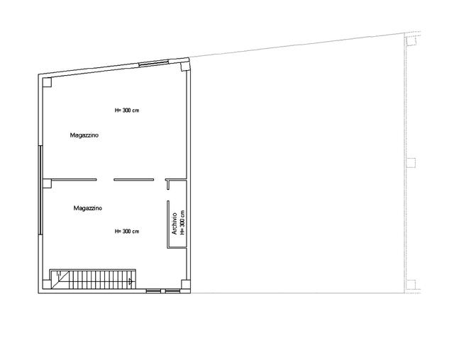
Il complesso si sviluppa su un lotto interamente recintato di circa 6.641 mq e comprende un magazzino ad uso ricovero legname di circa 1.326 mq, una segheria con annessi essiccatoi e tettoie per ulteriori 1.260 mq. Le strutture, di vecchia costruzione e oggi non operative, formano un unico blocco compatto con buona comunicazione interna e si prestano a interventi di ristrutturazione o riconversione in funzione delle esigenze produttive o commerciali.
L’immobile ricade in zona D1.2 “Completamento degli spazi produttivi, commerciali e direzionali” secondo il vigente Piano di Assetto del Territorio del Comune di Bovolone. La posizione, a soli 2 km dal centro cittadino e facilmente accessibile dalla viabilità principale, garantisce praticità e visibilità.
Un’opportunità interessante per operatori e investitori alla ricerca di un complesso produttivo da riqualificare con ampi spazi coperti e scoperti in un contesto artigianale-industriale ben localizzato.









































































