







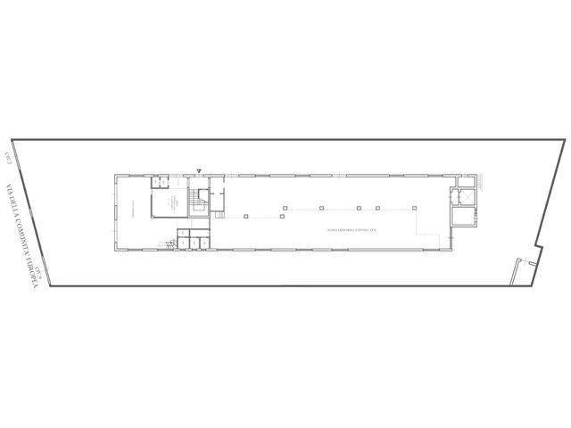
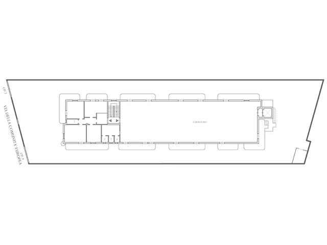
Opportunità unica per imprese e investitori: proponiamo in vendita un capannone industriale di 600 mq + 620 mq. di piazzale, situato in Via degli Artigiani, una delle zone artigianali e produttive più dinamiche di Barletta.
La struttura presenta un'altezza interna di 4,15 metri, ideale per molteplici attività produttive, logistiche e artigianali. La proprietà con il suo ampio piazzale recintato di circa 620 mq, delimitato da struttura cementizia di circa 2,50 m di altezza, è perfetta per stoccaggio esterno, movimentazione merci, parcheggio mezzi o ulteriore area operativa.
Dotazioni principali:
Impianto elettrico e tecnologico a norma di legge
Impianto di videosorveglianza attivo
Ottima accessibilità carrabile e comoda manovrabilità per automezzi pesanti
Possibilità di personalizzazione e adattamento alle esigenze aziendali
Grazie alla versatilità degli spazi, l’immobile si presta ad accogliere attività manifatturiere, officine, depositi logistici, laboratori artigianali, showroom o sede operativa per aziende di servizi.
Posizione strategica, ben collegata alle principali arterie viarie della città e alle zone industriali limitrofe.
Un investimento sicuro, pronto all’uso e con ottime potenzialità di rendimento.
Contattaci subito per maggiori informazioni, visite in loco o per ricevere la documentazione tecnica.
Non lasciarti sfuggire questa opportunità di consolidare o far crescere la tua impresa!































