












1/13
Valdastico (Vicenza) - Via Cerati (Via Dogana), N. 25
3282 m23Locali4Bagni
Opificio, un tempo adibito alla lavorazione dei mobili in legno, con zona uffici al piano terra e zona espositiva al piano primo, sito in Valdastico (VI), Via Cerati, 25 (Via Dogana/Via Trento). Il fabbricato industriale si estende su un’area di terreno pertinenziale. Ubicato in zona centrale, provvista di servizi di urbanizzazione primaria e secondaria.
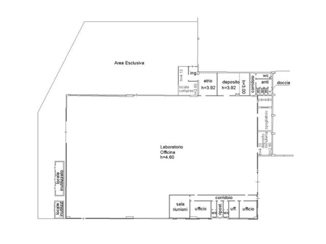
L’opificio è diviso in diverse sezioni, ciascuna delle quali dedicata alla lavorazione del legno. Sono altresì presenti alcuni locali magazzino, una centrale termica e una cabina elettrica.
Esternamente è presente un cortile interno che si collega al blocco servizi igienici e spogliatoi.
Il piano primo, costituito da una zona espositiva, è raggiungibile tramite un vano scala posizionato nella parte centrale del fabbricato industriale.
Parte del terreno di pertinenza è costituito dal piazzale prospiciente il fabbricato industriale, dove è possibile parcheggiare. Il lotto non risulta essere recintato.
Si segnala la presenza di amianto sulla copertura dell’edificio.
L’opificio ricade in area di riqualificazione e riconversione e presenta difformità; il tutto risulta meglio specificato in perizia (pag 9, 12-13 e 16).
Immobile libero, inutilizzato da tempo.
I beni mobili presenti all’interno non sono oggetto della presente vendita.
Per maggiori dettagli consultare i documenti allegati.
Superfici
Opificio 3.282 mq
Part 833: 1.319 mq
Part 1334: 100 mq
Part 1191: 240 mq
Part 1303: 120 mq
L’opificio è diviso in diverse sezioni, ciascuna delle quali dedicata alla lavorazione del legno. Sono altresì presenti alcuni locali magazzino, una centrale termica e una cabina elettrica.
Esternamente è presente un cortile interno che si collega al blocco servizi igienici e spogliatoi.
Il piano primo, costituito da una zona espositiva, è raggiungibile tramite un vano scala posizionato nella parte centrale del fabbricato industriale.
Parte del terreno di pertinenza è costituito dal piazzale prospiciente il fabbricato industriale, dove è possibile parcheggiare. Il lotto non risulta essere recintato.
Si segnala la presenza di amianto sulla copertura dell’edificio.
L’opificio ricade in area di riqualificazione e riconversione e presenta difformità; il tutto risulta meglio specificato in perizia (pag 9, 12-13 e 16).
Immobile libero, inutilizzato da tempo.
I beni mobili presenti all’interno non sono oggetto della presente vendita.
Per maggiori dettagli consultare i documenti allegati.
Superfici
Opificio 3.282 mq
Part 833: 1.319 mq
Part 1334: 100 mq
Part 1191: 240 mq
Part 1303: 120 mq
















































