Foggia
COD. ANNUNCIO 22592
860
LOCALI 20

TRATTATIVA RISERVATA

Immobile commerciale destinato a business centre e coworking.

TRATTATIVA RISERVATA

Foggia (Foggia) - via Nicola De Dominicis

TRATTATIVA RISERVATA


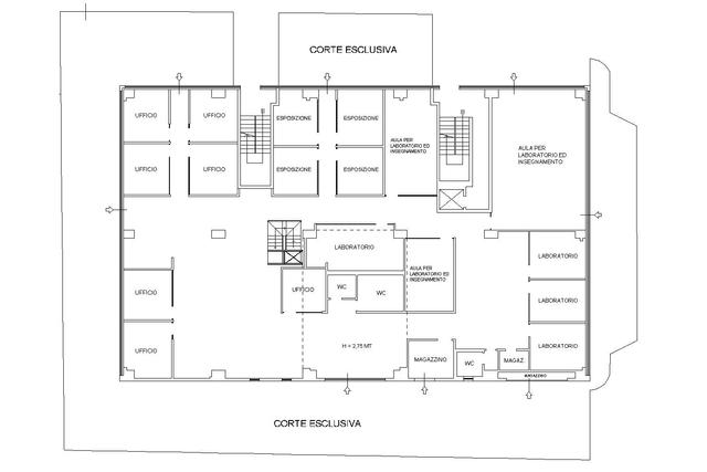
Edificio direzionale, sito in Foggia (FG), via Nicola De Dominicis.
Il complesso immobiliare ove ha sede l’unità immobiliare oggetto della presente è stato realizzato nell’anno 2005 ed è un edificio direzionale pluripiano composto da piano terra ed un piano primo destinato ad uffici.
L’immobile si sviluppa su pianta regolare a sezione rettangolare per una superficie commerciale complessiva di circa 860,00 mq di cui circa 770,00 mq in piano terra e circa 90,00 mq di superficie soppalcata con struttura metallica in acciaio che copre parzialmente il piano terra.
L’unità immobiliare dispone inoltre di un piazzale esclusivo interamente recintato che delimita l’edificio per tre lati, destinato a parcheggi, viabilità e verde per una superficie complessiva di 1.500,00 mq e n.°10 posti auto di esclusiva proprietà nel retrostante parcheggio condominiale con accesso da Via Nicola de Dominicis.
L’immobile è situato, a poche centinaia di metri dal centro cittadino, nella zona est della città di Foggia, caratterizzata da un’espansione di nuovi insediamenti edilizi. Il contesto urbano di riferimento è costituito da insediamenti di edilizia mista commerciale, artigianale e residenziale.
L’edificio, inoltre, è ubicato a stretto ridosso del casello autostradale A14 Bologna – Taranto, della Strada Statale 16 sia in direzione Bari che in direzione Pescara, nonché della Strada Statale 89 Garganica.

L’immobile è dotato di un impianto per la produzione di energia elettrica da fonte solare fotovoltaica composto da nr. 45 pannelli fotovoltaici con tecnologia in silicio monocristallino dell’azienda Trina Solar mod. Vertex S+, completo delle necessarie strutture di sostegno (“zavorre”), componenti e condotte elettriche. L’impianto, collocato sulla copertura del fabbricato, sviluppa una potenza pari a 20 kW ed è dotato di n.02 inverter trifase (marca Huawei) della potenza apparente pari a 20 kVA con rendimento massimo previsto pari al 97% e nr. 03 batterie di accumulo per complessivi 15 kW (marca Huawei). Completa l’impianto un quadro elettrico dedicato e relativo quadro di interfaccia collegato alla rete di distribuzione pubblica in conformità alla normativa vigente CEI 11-20, CEI 0-21. 

APE in corso di definizione

Il numero dei locali e i mq commerciali inseriti sulla scheda sono da ritenersi dati indicativi; la reale consistenza dell’immobile sarà desumibile dalla documentazione messa a disposizione dalla proprietà.




Caratteristiche

  • Superficie immobile

    860 m²


  • Numero locali

    20


  • Codice annuncio

    22592


  • Piano ingresso

    Terra


  • Piani totali edificio

    2


  • Anno costruzione

    2005



Dotazioni

  • Parcheggio privato


Documenti disponibili

Scarica i documenti disponibili per questo immobile

Posizione dell'immobile

Scopri dove si trova l'immobile che ti interessa
  • Devi per poter visualizzare la posizione sulla mappa.

Quimmo dà valore alla vendita del tuo immobile

Affidati ai professionisti del Mercato Immobiliare, il tuo immobile sarà la priorità.

Vendilo con noi