











L’immobile si trova nel Comune di Pandino, in Via Stefano da Pandino 34/36, all’interno del centro storico. L’area è regolamentata dall’articolo 6 del Piano di Governo del Territorio, che tutela gli edifici di interesse storico e insediativo tradizionale.
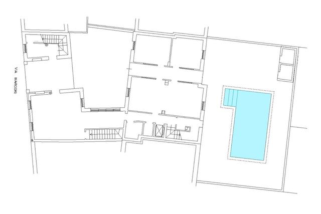
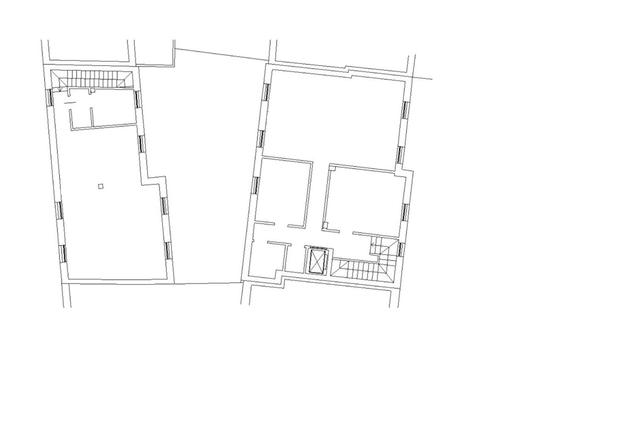
L’edificio, un tempo sede di uffici pubblici, è composto da un fabbricato su due livelli fuori terra e da un cortile rettangolare di circa 280 mq. Al piano terra si distribuiscono tre vani sul lato est del vano scala, due vani e un servizio igienico sul lato ovest, oltre a un locale adibito a sgombero. Il primo piano ospita tre locali a est, due a ovest del vano scala e un balcone a sbalzo con parapetto in ferro.
L’accesso principale avviene da Via Stefano da Pandino, tramite due cancelli in ferro, uno carraio e uno pedonale.
L’immobile gode di servitù attive di veduta sulla particella a nord e sul cortile, tramite finestre e balconi. È sottoposto a vincolo della Soprintendenza, come stabilito da decreto del Ministero per i Beni e le Attività Culturali della Lombardia, che ha autorizzato la sua alienazione.
Attualmente l’edificio è sfitto e utilizzato come magazzino/deposito.
La vendita comprende anche i diritti proporzionali di comproprietà su beni e spazi comuni.
Per ulteriori informazioni, si rimanda alla documentazione allegata.

























