Codogno
COD. ANNUNCIO 2537525
987
LOCALI 12
A partire da

650.000 €

Uffici nel cuore di Codogno con box auto e cantine

A partire da

650.000 €

Codogno (Lodi) - Via Michelangelo Buonarroti, 26845 Codogno LO, Italia

A partire da

650.000 €


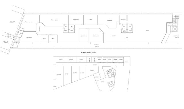
Proponiamo in vendita ampio ufficio situato in Via Michelangelo Buonarroti, nel cuore di Codogno, in posizione centrale e comoda a tutti i principali servizi.

L’immobile, con destinazione direzionale, si sviluppa al primo piano di un edificio moderno a uso misto commerciale, residenziale e terziario, composto da quattro piani fuori terra e un piano interrato.
La superficie complessiva è di circa 987 mq, distribuita su due unità immobiliari adatte a essere utilizzate come uffici, studi professionali o sedi aziendali di rappresentanza.

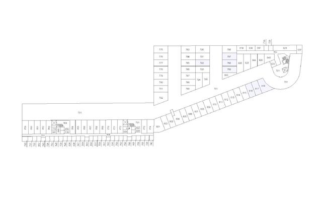
A completare la proprietà vi sono sette box auto situati al piano interrato, che garantiscono praticità e comodità di parcheggio, oltre a sei cantine — cinque collegate a una delle unità e una alla seconda.

Un immobile versatile e spazioso, ideale per società, studi associati o professionisti che cercano una soluzione di ampie dimensioni nel centro di Codogno, in una posizione strategica e ben servita.


Caratteristiche

  • Superficie immobile

    987 m²


  • Numero locali

    12


  • Codice annuncio

    2537525


  • Piano ingresso

    1


  • Piani totali edificio

    5


  • Bagni

    4



Dotazioni

  • Posto auto coperto

  • Ascensore


Documenti disponibili

Scarica i documenti disponibili per questo immobile

Come acquistare questo immobile

1. Scarica e leggi il disciplinare

Nel Disciplinare di gara trovi tutte le informazioni utili per partecipare alla compravendita. Scaricalo e leggilo con attenzione.

2. Paga la cauzione

Paga la cauzione con bonifico bancario o con carta di credito e partecipa alla gara online. Se non sarai miglior offerente, ti verrà restituita con la stessa modalità di pagamento.

3. Partecipa alla fase rilanci

Durante lo svolgimento della gara online puoi inserire offerte e fare rilanci, se non sei l'unico partecipante.

4. Invia la tua offerta irrevocabile

Se sarai il migliore offerente, dovrai formalizzare la tua offerta secondo i tempi e le modalità indicate nella modulistica allegata all'annuncio.


Posizione dell'immobile

Scopri dove si trova l'immobile che ti interessa
  • Devi per poter visualizzare la posizione sulla mappa.

Punti di interesse nelle vicinanze

Dai un'occhiata ai punti di interesse della zona
  • Trasporti
    • Stazione ferroviaria300 m
    • Fermata bus300 m
    • Autostrada5.5 km
    • Aeroporto23.8 km
  • Scuole
    • Scuola548 m
    • Scuola primaria882 m
    • Scuola secondaria1.4 km
  • Salute
    • Ospedale623 m
    • Farmacia1.4 km
    • Medico53 m
    • Veterinario709 m
  • Alimentari
    • Supermercato1.3 km
    • Ristorante149 m
    • Bar354 m
    • Minimarket649 m
    • Panetteria649 m
  • Servizi
    • Banca705 m
    • Posta43 m
    • ATM705 m
    • Benzinaio1.4 km
  • Svago
    • Centro commerciale2.6 km
    • Parco232 m
    • Palestra512 m
    • Estetista665 m

Quimmo dà valore alla vendita del tuo immobile

Affidati ai professionisti del Mercato Immobiliare, il tuo immobile sarà la priorità.

Vendilo con noi