Montano Lucino
COD. ANNUNCIO 2638647
289
LOCALI 3
A partire da

345.000 €

Negozio in complesso commerciale

A partire da

345.000 €

Montano Lucino (Como) - Via G. Leopardi, 1, 22070 Lucino CO, Italia

A partire da

345.000 €


Situato in Via Giacomo Leopardi 1, all'interno del vivace polo commerciale di Montano Lucino, proponiamo in vendita un locale di sicuro interesse posizionato proprio nel cuore dell'area cinema. La collocazione al piano terra garantisce un accesso immediato e una visibilità costante, beneficiando dell'importante flusso di pubblico generato dalla multisala e dalle attività limitrofe.

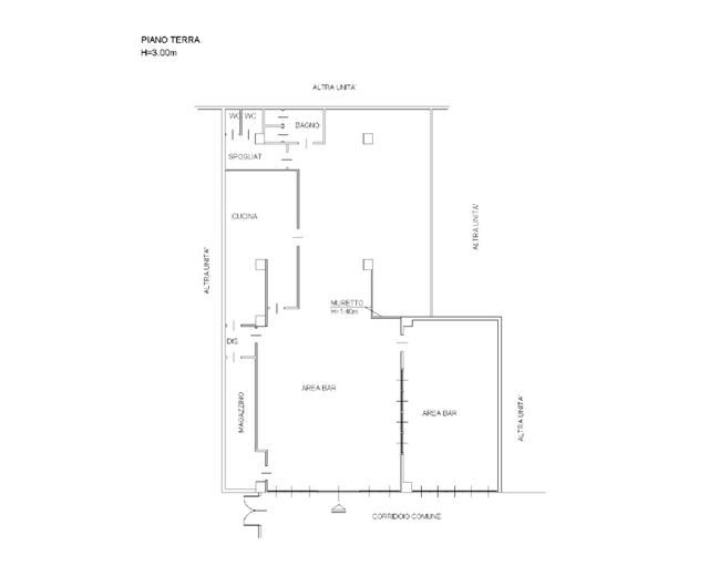
L'immobile si distingue per una distribuzione interna funzionale e versatile. Lo spazio principale è dedicato a un'ampia area bar con affaccio diretto sul corridoio comune, supportata da una cucina attrezzata, un magazzino riservato e una zona servizi completa di spogliatoio e bagni a norma.

Questa soluzione rappresenta l'investimento ideale per attività di ristorazione o retail che puntano sulla sinergia con il mondo dell'intrattenimento. Una location pronta a trasformare il passaggio pedonale in opportunità di business.


Caratteristiche

  • Superficie immobile

    289 m²


  • Numero locali

    3


  • Codice annuncio

    2638647


  • Piano ingresso

    Terra


  • Piani totali edificio

    6


  • Bagni

    3



Impianti ed efficienza energetica

  • Riscaldamento

    centralizzato


  • Climatizzazione

    centralizzato


  • Classe energetica

    B



Documenti disponibili

Scarica i documenti disponibili per questo immobile

Come acquistare questo immobile

1. Scarica la documentazione

Scarica e leggi con attenzione tutta la documentazione per partecipare alla compravendita.

2. Fai la tua offerta non vincolante

Indica il prezzo che sei disposto a pagare per questo immobile e lo comunicheremo al referente.

3. Aspetta di essere ricontattato

Se il venditore riterrà adeguata la tua offerta sarai ricontattato per fare, se lo vorrai, un'offerta ufficiale.


Posizione dell'immobile

Scopri dove si trova l'immobile che ti interessa
  • Devi per poter visualizzare la posizione sulla mappa.

Punti di interesse nelle vicinanze

Dai un'occhiata ai punti di interesse della zona
  • Trasporti
    • Stazione ferroviaria317 m
    • Fermata bus40 m
    • Autostrada1.1 km
    • Aeroporto8.4 km
  • Scuole
    • Scuola192 m
    • Scuola primaria649 m
    • Scuola secondaria3.1 km
    • Università3.4 km
  • Salute
    • Ospedale547 m
    • Farmacia266 m
    • Medico266 m
  • Alimentari
    • Supermercato255 m
    • Ristorante31 m
    • Bar451 m
    • Minimarket255 m
    • Panetteria255 m
  • Servizi
    • Banca320 m
    • Posta627 m
    • ATM619 m
  • Svago
    • Centro commerciale656 m
    • Parco983 m
    • Palestra192 m
    • Spa488 m
    • Parrucchiere488 m
    • Estetista488 m

Quimmo dà valore alla vendita del tuo immobile

Affidati ai professionisti del Mercato Immobiliare, il tuo immobile sarà la priorità.

Vendilo con noi