



Capannone ad uso magazzino, situato nel Comune di Corigliano Rossano (CS), con accesso lungo Via Andrea De Bartolo. L’immobile si trova in Contrada Cantinella in zona di confine tra zona agricola e zona urbanizzata, a circa 9 km dal centro di Corigliano, ben collegata alla Strada Statale 106 Jonica.
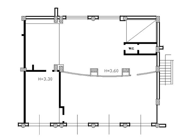
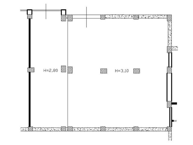
Il capannone si sviluppa su un unico livello posto al piano terra ed ha una struttura portante in profilati di acciaio tipo IPE e struttura di copertura con travi reticolari in acciaio.
All’interno sono presenti due celle frigorifere in muratura, servizi igienici, un soppalco con due ripostigli con uffici accessibile tramite una scala in ferro.
L’immobile ha un’altezza massima al colmo della copertura di circa 6,40 m ed un’altezza minima di 5,0 m.
“DAL PUNTO DI VISTA DELLA CONFORMITÀ URBANISTICA, SONO STATE AVVIATE LE PRATICHE DI CONDONO. IL COSTO STIMATO PER LA DEFINIZIONE DELLA PRATICA URBANISTICA È PARI A CIRCA € 18.000,00. SI PRECISA INOLTRE CHE SULLA COPERTURA DELL’EDIFICIO SONO PRESENTI LASTRE IN ETERNIT "
Superficie complessiva in pianta: circa 382,00 mq.



































