





1/6
Monticello Conte Otto (Vicenza) - Via Brenta, N. 18
Da4.556 €
133 m25Locali1Bagno
Quota di 833/9999 di appartamento, sito in Monticello Conte Otto (VI), Via Brenta 18. Unità posta in una palazzina che si sviluppa su due piani fuori terra, composta da due unità immobiliari indipendenti, ubicata nella zona sud del Comune.
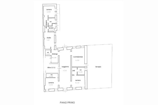
L’appartamento, posto al piano primo, è catastalmente costituito da una scala di accesso indipendente dal piano terra al primo, ingresso-corridoio, soggiorno con terrazzino, cucina con secondo terrazzino, un locale di disimpegno al bagno e alle tre camere.
L’unità è dotata di annessa autorimessa con ripostiglio ubicata in altro fabbricato accessibile da corte comune.
Sono presenti difformità, meglio specificate in perizia (pag 2).
I beni mobili presenti all’interno non sono oggetto della presente vendita.
Per maggiori dettagli consultare la documentazione allegata.
Superfici catastali
Appartamento 133 mq
Autorimessa 39 mq
Quota di 833/9999 di Piena proprietà di:
Appartamento (CF): Foglio 7 – Particella 532 – Subalterno 2 – Cat. A/2
Autorimessa (CF): Foglio 7 – Particella 532 – Subalterno 4 – Cat. C/6
Sono compresi nella vendita i proporzionali diritti di comproprietà su beni comuni e parti di uso comune.
L’appartamento, posto al piano primo, è catastalmente costituito da una scala di accesso indipendente dal piano terra al primo, ingresso-corridoio, soggiorno con terrazzino, cucina con secondo terrazzino, un locale di disimpegno al bagno e alle tre camere.
L’unità è dotata di annessa autorimessa con ripostiglio ubicata in altro fabbricato accessibile da corte comune.
Sono presenti difformità, meglio specificate in perizia (pag 2).
I beni mobili presenti all’interno non sono oggetto della presente vendita.
Per maggiori dettagli consultare la documentazione allegata.
Superfici catastali
Appartamento 133 mq
Autorimessa 39 mq
Quota di 833/9999 di Piena proprietà di:
Appartamento (CF): Foglio 7 – Particella 532 – Subalterno 2 – Cat. A/2
Autorimessa (CF): Foglio 7 – Particella 532 – Subalterno 4 – Cat. C/6
Sono compresi nella vendita i proporzionali diritti di comproprietà su beni comuni e parti di uso comune.

































































































































