





















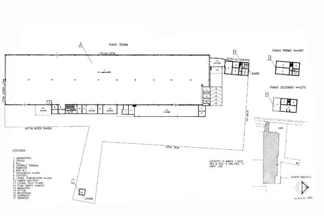
Vendesi complesso industriale con uffici e terreno sito a Gaiarine (TV), località Busco, via Salvatoizza 5-7-9. Il contesto è semicentrale, tranquillo e con traffico regolare. La zona è urbanizzata e ben collegata ai vicini centri e alla rete infrastrutturale. Area caratterizzata da capannoni con buona possibilità di parcheggio e agglomerati residenziali. Trattasi di complesso produttivo realizzato nel 1970, successivamente ampliato. Un tempo adibito a produzione e vendita di cucine, si compone di due grandi opifici sviluppati piano terra (una parte datata ed una nuova), con blocco su due piani formato da uffici ed alloggio, oltre ad abitazione indipendente su tre piani con magazzino e giardino. Strutture in cemento armato e ferro. Coperture a volta, in travi reticolari con shed, piane e a falde. Finiture e impianti standard, adatti ad attività artigianali e residenziali. Completa la proprietà un'ampia area esterna con terreno di pertinenza esclusiva, completamente recintata e dotata di tre accessi carrabili fronte strada. Possibilità di frazionamento. Immobile libero. Condizioni buone.
PER MAGGIORI DETTAGLI CONSULTARE I DOCUMENTI ALLEGATI.
Classe energetica F-G
Superficie commerciale: 20118 mq
Proprietà di Sezione B, Foglio 4:
Opificio (CF): Particella 20 – Subalterno 6 – D/1
Alloggio (CF): Particella 20 – Subalterno 2 – A/2
Parti comuni (CF): Particella 20 – Subalterno 7 – BCNC
Abitazione (CF): Particella 731 – Subalterno 1 – A/2
Magazzino (CF): Particella 731 – Subalterno 2 – C/2
Parti comuni (CF): Particella 731 – Subalterno 3 – BCNC
Area urbana (CF): Particella 250 – F/1
Terreno retro (CT): Foglio 14 – Particelle 46 e 126
Area di sedime (CT): Foglio 14 – Particelle 20, 250 e 731 – Ente urbano




















