







In posizione strategica, lungo una delle principali vie di collegamento della zona e a pochi chilometri dall’uscita autostradale di Palmanova, proponiamo in vendita un ampio capannone industriale, libero subito e caratterizzato da un’eccellente visibilità.
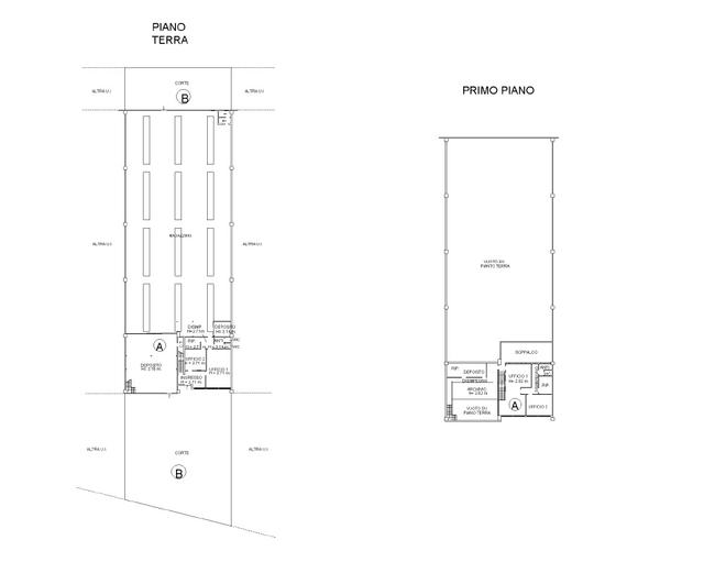
L’immobile è suddiviso in tre campate, soluzione che garantisce flessibilità d’uso e permette di adattare gli spazi a diverse esigenze produttive, artigianali o logistiche. All’interno sono presenti uffici dedicati alle funzioni amministrative e gestionali, oltre a doppi servizi, a supporto delle attività operative.
Caratteristiche principali
- Superficie coperta totale: 1.500 mq
- Scoperto esclusivo: circa 150 mq, ideale come area di manovra, parcheggio o deposito esterno
- Suddivisione interna in tre campate, perfetta per produzione/stoccaggio
- Uffici interni già predisposti
- Doppi servizi
- Immediata disponibilità
L’ubicazione lungo una direttrice trafficata e facilmente raggiungibile rende il capannone una soluzione ottimale per aziende che necessitano di visibilità, accessibilità e spazi funzionali pronti all’uso.
Per ulteriori informazioni o per organizzare un sopralluogo, siamo a disposizione.









