783.000 €


























- 21 Foto
- 5 Planimetrie
- Street view
- Mappa
Asta Ex cantina vinicola da riqualificare in struttura ricettiva
783.000 €
Pula (Cagliari) - Via Tevere, 09010 Pula CA, Italia
783.000 €
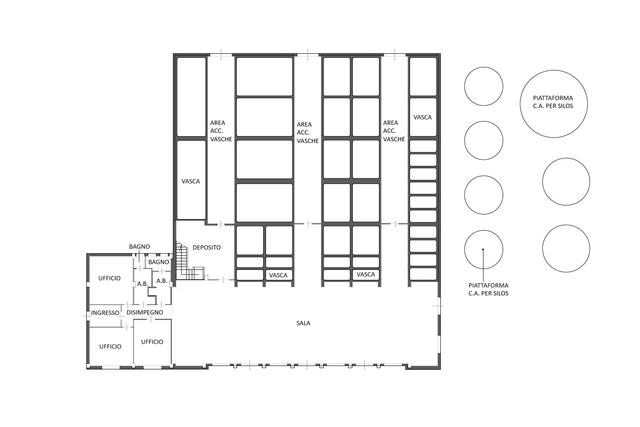
Ex struttura a destinazione produttiva, precedentemente adibita a cantina vinicola, da riqualificare in struttura ricettiva sita nel Comune di Pula (CA), località Santa Margherita, via Tevere angolo via Tirso.
L’immobile si sviluppa su tre piani fuori terra e sorge all’interno di un ampio lotto con accesso carrabile direttamente dalla via Tevere. Si compone di una zona d’ingresso recentemente oggetto di interventi di manutenzione, ambienti destinati a uffici e servizi igienici, oltre a un’area retrostante con vasche di lavorazione che si distribuisce anche ai piani primo e secondo. È presente anche un locale indipendente adibito a pesa, situato in prossimità dell’ingresso.
Gli aggiornamenti urbanistici prevedono:
- Recupero ex Cantina Sociale come struttura ricettiva per turismo natura ed escursionismo.
- Valorizzare la ex Cantina Sociale con la previsione di servizi orientati alla valorizzazione e vendita di prodotti locali, al turismo locale, al cicloturismo e all’escursionismo naturalistico, alla realizzazione di strutture ricettive di supporto alle attività e ai servizi di interesse generale (foresterie, bike-hotel).
- Sono ammessi interventi fino alla demolizione e ricostruzione, a parità di volume, per gli edifici realizzati successivamente.
Per maggiori dettagli consultare la documentazione allegata.
Caratteristiche
- Superficie immobile - 2116 m² 
- Numero locali - 4 
- Codice annuncio - 2536548 
- Piano ingresso - Terra 
- Piani totali edificio - 3 
- Bagni - 2 
Documenti disponibili
Come acquistare questo immobile
1. Scarica la documentazione
Scarica e leggi con attenzione tutta la documentazione per partecipare alla compravendita.
2. Fai la tua offerta non vincolante
Indica il prezzo che sei disposto a pagare per questo immobile e lo comunicheremo al referente.
3. Aspetta di essere ricontattato
Se il venditore riterrà adeguata la tua offerta sarai ricontattato per fare, se lo vorrai, un'offerta ufficiale.
Posizione dell'immobile
- Devi per poter visualizzare la posizione sulla mappa.
Punti di interesse nelle vicinanze
- Trasporti- Stazione ferroviaria345 m
- Fermata bus331 m
- Aeroporto33.4 km
 
- Scuole- Scuola460 m
- Scuola primaria460 m
 
- Salute- Ospedale5.7 km
 
- Alimentari- Ristorante503 m
- Bar503 m
- Minimarket503 m
 
- Servizi- Banca1.1 km
- ATM1.1 km
- Benzinaio1.1 km
 
- Svago- Centro commerciale4.0 km
- Parco503 m
 
Quimmo dà valore alla vendita del tuo immobile
Affidati ai professionisti del Mercato Immobiliare, il tuo immobile sarà la priorità.
Vendilo con noi
