


1/3
Alvignano (Caserta) - C.SO UMBERTO I
Da190.000 €
598 m23Locali
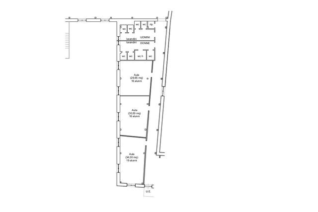
Nel centro storico di Alvignano proponiamo un ufficio al terzo piano di un fabbricato di complessivi tre piani fuori terra ubicato su Corso Umberto I. Sviluppa per una superficie complessiva pari a 508 mq ed è diviso in due aree autonome aventi ciascuna un proprio ingresso, e che sono distribuite lungo i lati
nord-ovest (183 mq) e sud-est (289 mq) e tra le quali è presente un’area comune che funge da disimpegno e da collegamento con il blocco connettivo verticale, composto da scala ed ascensore ubicati sul lato nord-est del fabbricato.
Corso Umberto I è una delle principali vie della città che garantiscono ottima visibilità a qualsiasi attività uno voglia insediare.
Superficie lorda circa: 508 mq.
nord-ovest (183 mq) e sud-est (289 mq) e tra le quali è presente un’area comune che funge da disimpegno e da collegamento con il blocco connettivo verticale, composto da scala ed ascensore ubicati sul lato nord-est del fabbricato.
Corso Umberto I è una delle principali vie della città che garantiscono ottima visibilità a qualsiasi attività uno voglia insediare.
Superficie lorda circa: 508 mq.
































