Andria
COD. ANNUNCIO 24151
377
LOCALI 9
A partire da

220.000 €

Ufficio ex studio medico

A partire da

220.000 €

Andria (Barletta-Andria-Trani) - Via Luigi Morelli, N. 46

A partire da

220.000 €


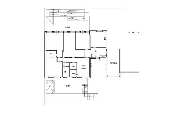
L’accesso all’ufficio è garantito da tre accessi indipendenti:
INGRESSO 1 in pianta da Via Luigi Morelli 46 scendendo le scale e percorrendo tutto il corridoio fino in fondo si trova di fronte al piano scala una porta di accesso ingresso.
INGRESSO 2 da via Luigi Morelli 48 percorrendo sul lato sx il cortile si arriva ad un cancelletto che porta con una scala in muratura esterna al livello -1 in pianta.
INGRESSO 3 da Piazzale Giuseppe Colasanto, piccolo cancello in ferro che porta su una rampa che azzera qualsiasi barriera architettonica, accesso per disabili da un cortile interno come da pianta.
L'ultimo utilizzo è stato di uno studio medico polifunzionale, con 2 studi di pediatria e uno studio medico generico, medico di famiglia. La suddivisione attuale ben si presta a un riutilizzo nello stesso modo.

Descrizione:
N° 2 unità site in Andria (BAT), Via Luigi Morelli, costituite da:
n. 1 ufficio di 235 mq al piano interrato (sub. 70);
n. 1 locale deposito di 142 mq al piano secondo interrato (sub. 80).

Asset INFO:
Trattasi di ufficio (studio medico) di circa 235 mq al piano interrato altezza mt 3,40 cm (sub. 70), comprensivo di locale deposito di circa 142 mq al piano secondo interrato (sub. 80), all’interno di fabbricato pluripiano a destinazione prevalentemente residenziale con box auto ai piani interrati sito in Andria (BAT), Via Luigi Morelli.

Le unità risultano libere.
Internamente presenta finiture di tipo civile, idonee alla destinazione d’uso.

Il locale deposito invece è accessibile tramite cancello carraio automatizzato condominiale e successivamente da rampa e corsello comune ai box auto.

Piena proprietà:
A/10 (CF): Foglio 31 – Particella 290 – Subalterno 70
C/2 (CF): Foglio 31 – Particella 290 – Subalterno 80

Il prezzo è da intendersi iva esclusa (tipicamente aliquota pari al 22%). La proprietà si rende disponibile all’applicazione del reverse charge IVA.


Caratteristiche

  • Superficie immobile

    377 m²


  • Numero locali

    9


  • Codice annuncio

    24151


  • Piano ingresso

    Terra


  • Piani totali edificio

    4


  • Bagni

    2



Documenti disponibili

Scarica i documenti disponibili per questo immobile

Come acquistare questo immobile

1. Scarica la documentazione

Scarica e leggi con attenzione tutta la documentazione per partecipare alla compravendita.

2. Fai la tua offerta non vincolante

Indica il prezzo che sei disposto a pagare per questo immobile e lo comunicheremo al referente.

3. Aspetta di essere ricontattato

Se il venditore riterrà adeguata la tua offerta sarai ricontattato per fare, se lo vorrai, un'offerta ufficiale.


Posizione dell'immobile

Scopri dove si trova l'immobile che ti interessa
  • Devi per poter visualizzare la posizione sulla mappa.

Punti di interesse nelle vicinanze

Dai un'occhiata ai punti di interesse della zona
  • Trasporti
    • Stazione ferroviaria479 m
    • Fermata bus418 m
    • Autostrada2.9 km
    • Aereoporto39.3 km
  • Scuole
    • Scuola354 m
    • Scuola primaria161 m
    • Scuola secondaria584 m
    • Università521 m
  • Salute
    • Ospedale797 m
    • Farmacia17 m
    • Medico273 m
    • Veterinario1.2 km
  • Alimentari
    • Supermercato1.7 km
    • Ristorante63 m
    • Bar422 m
    • Minimarket63 m
    • Panetteria63 m
  • Servizi
    • Banca525 m
    • Posta230 m
    • ATM525 m
    • Benzinaio479 m
  • Svago
    • Parco137 m
    • Palestra1.7 km
    • Estetista1.1 km

Quimmo dà valore alla vendita del tuo immobile

Affidati ai professionisti del Mercato Immobiliare, il tuo immobile sarà la priorità.

Vendilo con noi