




87.223 €






























87.223 €
Prezzo di perizia
116.297 €
- 25%
Acqualagna (Pesaro e Urbino) - V. Flaminia Nord, 228, 61043 Acqualagna PU, Italia
87.223 €
Prezzo di perizia
116.297 €
- 25%
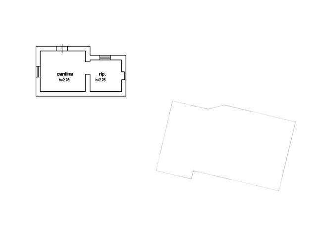
Abitazione indipendente con giardino e magazzino sita a Cagli (PU), in via Flaminia nord n.232.
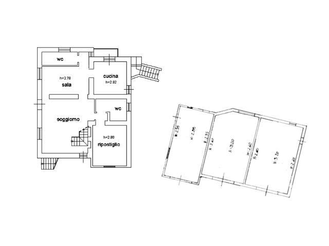
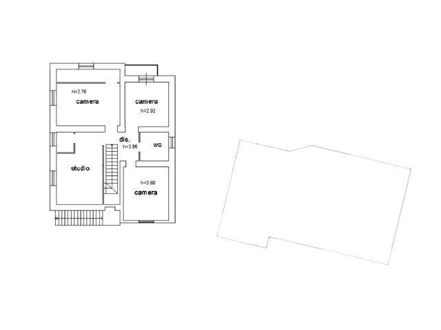
L’immobile si sviluppa su tre livelli: piano seminterrato, piano terra e primo piano, circondato da un’ampia area cortilizia rifinita a giardino, delimitata da muretti in calcestruzzo e rete metallica.
L’abitazione è composta da ingresso, soggiorno, sala, cucina, tre camere, studio, tre bagni, cantina e ripostigli. Gli ambienti sono ben distribuiti e luminosi, con finiture interne di buona qualità, pavimenti in ceramica, infissi in legno e pareti tinteggiate.
Completa la proprietà un magazzino indipendente, composto da tre locali, ubicato all’interno della corte pertinenziale.
L’accesso al compendio è garantito da ingressi pedonale e carraio direttamente dalla via principale.
Il bene risulta non conforme ma regolarizzabile.
Per maggiori informazioni vedasi documentazione allegata.
Termine raccolta offerte
01/12/2025, 11:00
Data apertura asta
03/12/2025, 15:00
Offerta minima
87.223 €
Base d'asta
116.297 €
Modalità di vendita
simil asincrona telematica con buste
Numero esperimento di vendita
1
Superficie immobile
23 m²
Numero locali
8
Codice annuncio
2537178
Piano ingresso
Terra
Piani totali edificio
3
Ingresso indipendente
Si
Camere da letto
3
Bagni
3
Giardino privato
Si
Pavimentazione zona giorno
ceramica
Pavimentazione zona notte
parquet
Riscaldamento
autonomo
Generatore di calore
caldaia
Tipo impianto di riscaldamento
radiatori
Climatizzazione
autonomo
Garage
Cantina
Clicca sul bottone “Partecipa all'asta” e segui, passo dopo passo, le istruzioni per predisporre la documentazione necessaria e compilare la tua prima offerta.
Una volta inviata la tua offerta, il Professionista vaglierà la documentazione che hai presentato. In caso di validazione, potrai partecipare alla fase rilanci.
Una volta che l'asta viene avviata, potrai effettuare dei rilanci nel caso in cui la tua offerta non fosse la più alta.
Se, al termine dell'asta, la tua offerta sarà la migliore dovrai solo completare l'iter di aggiudicazione.

Effettua la richiesta per ricevere l'assistenza gratuita e personalizata.

Un nostro esperto ti chiamerà subito per informarti sul materiale necessario per preparare l'offerta.

Ti guideremo, con una call dedicata, in tutta la compilazione dell'offerta tramite convidisione dello schermo.
Affidati ai professionisti del Mercato Immobiliare, il tuo immobile sarà la priorità.
Vendilo con noi




Appartamento situato nel Comune di Colli al Metauro (PU), in via Giovanni Verga n°9, nella frazione di Calcinelli.
La zona è prevalentemente residenziale, tranquilla e ben servita, vicina alla Strada Statale 73 bis.
L'appartamento si trova nel piano terra di un complesso condominiale residenziale di tre piani fuori terra ed un piano interrato che è stato realizzato nel 2004.
L'unità immobiliare è costituita un vano soggiorno con cucina, due camere da letto ed un bagno.
Completano la proprietà un giardino esclusivo e un garage nel piano interrato dell'edificio.
Il riscaldamento è autonomo con caldaia esterna.
I beni si trovano in buono stato di manutenzione.
Superficie complessiva: 81,72 mq


































































Diritto di usufrutto di un complesso immobiliare situato ad Apecchio (PU) in Via Alighieri n°29-31-33 (SP 257). Il bene si trova in una delle principali vie cittadine con principale destinazione residenziale. Il complesso è costituito da due unità abitative residenziali una delle quali comprensiva di box, due depositi ed un locale commerciale.
Un primo appartamento, il più ampio, è accessibile dal civico 31 e si dispone su tutti i 4 piani dell’edificio, ha dimensioni di circa 278 mq, un box per auto di circa 50 ma e un balcone di circa 13 mq.
Il secondo appartamento si dispone al piano secondo è di circa 95 mq.
Il deposito con accesso dal civico 29 è di circa 44 mq.
Il deposito che ha accesso dal civico 33 è di circa 33 mq.
Il locale commerciale è di circa 31 mq.
Alcuni locali del complesso hanno accesso da Vocabolo Campo (via Isidoro Pazzaglia).
L’edificio dentro il quale sono presenti le unità immobiliari risulta edificato ante 1967 e presenta le finiture dell’epoca.
La copertura dell’immobile risulta sostituita con pratica edilizia del 1991.
L’impianto termico è con caldaia e radiatori in ghisa ed alluminio
Superficie commerciale totale parametrata: circa 351 mq










Fano località Bellocchi appartamento al piano terra con giardino ed ingresso indipendente. L'immobile fa parte di una palazzina di 14 appartamenti. Composto da Soggiorno con Angolo cottura, due camere, bagno e ripostiglio/lavanderia.
Completano la proprietà un giardino in parte pavimentato ed un garage situato al piano interrato.
Ricevi i nuovi annunci e i nuovi servizi di Quimmo prima di tutti gli altri
Resta aggiornatoAbilio S.p.A. Capitale sociale i.v. Euro 60.975,00 | Sede legale: Via Galileo Galilei n°6, 48018 Faenza (RA) | Codice fiscale e Nr. Iscrizione Registro delle Imprese di Ravenna: 02704840392 | Numero REA RA: 224830 | Società appartenente al Gruppo IVA 'illimity' Partita IVA N. 12020720962 | Società soggetta all’attività di direzione e coordinamento di Banca Ifis S.p.A. | Società iscritta alla sezione A dell'elenco siti web autorizzati dal Ministero della Giustizia alla pubblicità delle aste giudiziarie - p.d.g. 18/05/2022 | Società iscritta al n.68 del Registro Gestori vendite telematiche del Ministero della Giustizia - p.d.g. 01/04/2022 | www.abilio.com | info@abilio.com
Termini e condizioni | Informativa privacy | Informativa cookies | - Copyright © Abilio S.p.A.
Questo sito è protetto da reCAPTCHA e si applicano le Norme sulla privacy e i Termini di servizio di Google.