






Locale commerciale, sito nel Comune di Volon (VR), Frazione Zevio, Piazza della Repubblica n.12. Dislocato nella zona centrale della frazione.
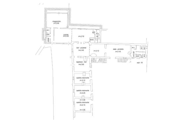
Trattasi di locale situato al piano terra, distribuito su di un unico spazio, con accesso da corte in comune con altre unità.
Il fabbricato presenta muratura presumibilmente intelaiata con tamponamenti in laterizio copertura a due falde con fibrocemento da bonificare secondo le attuali normative.
Sono presenti difformità, come meglio specificato in perizia (pag 11).
I beni mobili presenti all’interno dell’unità non sono oggetto della presente vendita.
Per maggiori dettagli consultare la documentazione allegata.
Bene descritto in perizia come LOTTO N°4.
Sono compresi nella vendita i proporzionali diritti di comproprietà su beni comuni e parti di uso comune.

















