














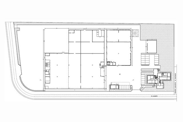
In vendita immobile produttivo sito a Cassano Magnago (VA) in Via Tintoretto 14, composto da un’ampia e funzionale area laboratorio affiancata da una zona uffici ben distribuita. L’unità è articolata in un grande laboratorio principale, un deposito, un locale tecnico e diversi spazi di servizio, oltre a uffici di varie dimensioni, una sala riunioni, servizi igienici e ulteriori locali tecnici a supporto delle attività.
La proprietà si trova in una posizione strategica, facilmente raggiungibile e ben collegata con le principali arterie viarie, ideale per attività produttive che richiedano efficienza logistica e operativa. Completano la dotazione dell’immobile un’area esterna privata prospiciente, adatta al posteggio dei veicoli aziendali o alle operazioni di carico e scarico merci.
Soluzione ideale per aziende alla ricerca di spazi versatili e ben strutturati in un contesto professionale e comodo per la movimentazione interna ed esterna.
Classe energetica "C" EPgl,nren 198,88 kwh/m2anno

























































