





Quota di appartamento sito in Castelnuovo di Garfagnana (LU), via Francesco Azzi 16. Il contesto è semicentrale e poco trafficato. La zona è urbanizzata con abitazioni, strutture commerciali, ristoranti e parcheggi, nei pressi del fiume Torite Secca. L’area è pedecollinare, ben collegata al vicino centro storico del paese e fornita di adeguata rete infrastrutturale. Trattasi di porzione di edifico trasformato da uso magazzino ad uso alloggio.
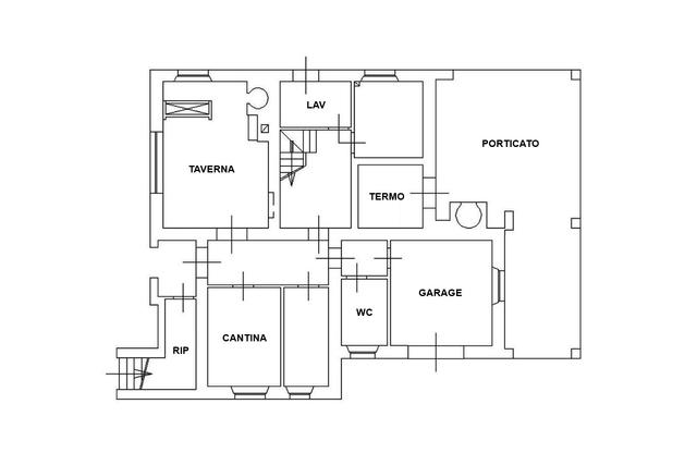
Fabbricato sviluppato su quattro piani di cui uno parzialmente interrato e uno cantinato.
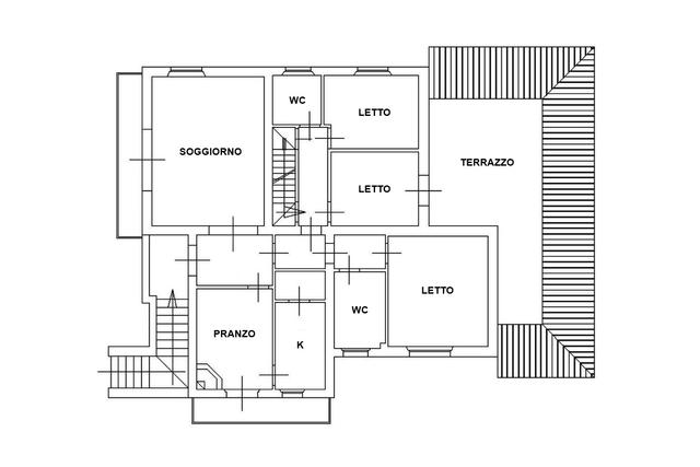
Alloggio sviluppato al piano seminterrato della struttura, accessibile da corte comune.
Ingresso con scalini, tinello/soggiorno, cucina, bagno, due camere e un ripostiglio.
Inclusi due vani ad uso cantina, centrale termica e scannafosso nell’interrato.
Finiture tradizionali ben curate. Riscaldamento autonomo con radiatori.
Condizioni buone. Beni mobili e arredi esclusi dalla vendita.
Superficie commerciale: 78,40 mq
Classe energetica G
ALLOGGIO E CANTINATO
Consistenza complessiva: 111 mq
Quota 1/3 della piena proprietà
Per maggiori dettagli consultare perizia e documenti allegati alla scheda







































