




















1.800.000 €























1.800.000 €
Faenza (Ravenna) - Via Pana, 84, 48018 Faenza RA, Italia
1.800.000 €
Quimmo propone in vendita esclusiva un interessante complesso immobiliare, situato in posizione privilegiata fronte autostrada, a pochi minuti dal casello autostradale, con massima visibilità e accessibilità.
Caratteristiche principali:
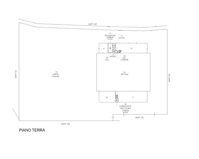
-Superficie complessiva recintata di oltre 5.500 mq, con accesso tramite due cancelli carrai automatizzati.
-Due fabbricati indipendenti, ciascuno su due livelli per un totale di 800 mq (400 mq cadauno), a destinazione mista: abitativa, laboratorio, uffici, deposito e archivio.
-Strutture collegate da una tettoia coperta di oltre 800 mq, ideale per stoccaggio e attività logistiche.
-Ampia area parcheggio e manovra frontale di circa 3.300 mq, adatta a mezzi pesanti, autoarticolati e rimessaggio.
Stato dell’immobile:
- Immobile in eccellente stato manutentivo.
-Impianti a norma di legge.
-Impianto fotovoltaico installato in copertura.
Situazione locativa e rendimento:
-Attualmente tutte le superfici sono locate a conduttori referenziati con rendimento superiore a 7,20% annuo.
-Canone annuo generato superiore alle normali valutazioni commerciali redatte dagli osservatori immobiliari, garantendo una redditività stabile e ulteriori margini di incremento grazie agli spazi ancora disponibili.
Ideale per:
-Imprenditori alla ricerca di una struttura polifunzionale, pronta all’uso e in posizione logistica strategica.
-Investitori interessati a un immobile già a reddito in eccellenti condizioni generali.
Per ricevere ulteriori dettagli, planimetrie e documentazione, contattaci o fissa un appuntamento presso i nostri uffici.
Superficie immobile
3000 m²
Numero locali
20
Codice annuncio
2537098
Piano ingresso
Terra
Piani totali edificio
2
Anno costruzione
1980
Riscaldamento
centralizzato
Classe energetica
F
Contattaci per visitare l'immobile o per avere maggiori informazioni.
Se la tua proposta di prezzo verrà considerata congrua, il referente ti fornirà la modulistica necessaria per formalizzare l'offerta.
Il referente inoltrerà la tua offerta al venditore e ti terrà aggiornato sull'esito e i passaggi successivi.
Affidati ai professionisti del Mercato Immobiliare, il tuo immobile sarà la priorità.
Vendilo con noi




















Quimmo propone in vendita interessante compendio immobiliare nella zona industriale "Malpighi".








































Capannone sito a Lugo (RA), località San Bernardino, via Bastia 124. Il contesto è periferico e poco trafficato. La zona è di campagna, dotata dei servizi essenziali, con edifici residenziali e strutture rurali, sviluppata lungo il fiume Santerno. L’area è ben collegata alla SS16 Adriatica e al raccordo autostradale. Edificio realizzato nel 1959, ampliato negli anni ’80 e negli anni ’90. Struttura prefabbricata in cemento armato. Agibilità rilasciata.
Ampio opificio sviluppato al solo piano terra con annesso blocco uffici fronte strada su due livelli.
Capannone con aree lavorazione, magazzini, pensilina di carico-scarico, spogliatoi e servizi.
Cortile asfaltato e recintato, dotato di doppio accesso carrabile. Presente cabina elettrica.
Finiture standard ed impianti adatti alle attività artigianali. Zona uffici climatizzata.
Condizioni buone. Beni mobili e arredi esclusi dalla vendita.
Superficie commerciale: 3154 mq
Classe energetica D-G
CAPANNONE ARTIGIANALE
Opificio con uffici e cortile
Cabina elettrica interna
Piena proprietà di:
CF: Foglio 35 – Particella 95 – Subalterno 1 – D/8 (su ente urbano di 5255 mq)

































Loc. San Bernardino, via Stradone San Bernardino n. 75, vendesi laboratorio artigianale a pianta rettangolare con misure massime m. 29,60x12,60, privo di servizi, dotato di piccola area cortiliva di pertinenza esclusiva gravata da servitù di passaggio a favore dell’immobile confinante. Per accedere all’immobile si deve passare sulla corte privata dell’immobile antistante. L’immobile è dotato dei seguenti impianti: impianto elettrico; impianto elettronico (TVCC); impianto di riscaldamento; impianto per la distribuzione ed utilizzazione del gas. I
l terreno su cui insiste il fabbricato oggetto di perizia nel PRG vigente risulta inserito in “Zona produttiva D. Zona produttiva inserita in contesto urbano-residenziale D1”.
Superficie commerciale: 385 mq
Superficie laboratorio: 373 mq
Area esclusiva: 121 mq
Piena proprietà:
C/3 (CF): Foglio 29 – Particella 171 – Subalterno – 1
Eventuali difformità ostative al trasferimento saranno regolarizzate dalla proprietà.
Il prezzo è da intendersi iva esclusa (tipicamente aliquota pari al 22%). La proprietà si rende disponibile all’applicazione del reverse charge IVA.













Quimmo propone in vendita a Ravenna, via Dell'Abete 21, nelle vicinanze della zona industriale di Ponte Nuovo, capannone artigianale completo di piazzale, uffici e appartamento al primo piano.
L'immobile in oggetto si sviluppa per circa 1.000 metri quadrati di cui oltre 800 adibiti alla riparazione dei veicoli/carrozzeria, completo di tutte le attrezzature necessaria, zona uffici ben tenuta per circa 100 mq, con accesso al primo piano ove situato un appartamento al momento non utilizzato/locato composto da zona giorno, cucina, 2 camere, bagno, 2 terrazzi per ulteriori 100 mq complessivi.
Il lotto in cui sorge il complesso è recintato, ben tenuto, è complessivamente di 2.500 mq e sul davanti è presente un ampio piazzale con parcheggi e area di manovra.
Decisamente buono lo stato complessivo del compendio.
L'immobile, ad eccezione dell'appartamento, è locato con canone di locazione complessivo pari ad € 78.000 il che rende l'acquisto di questo bene interessante sia per imprenditori del settore che per privati in cerca di un investimento a reddito.
Ricevi i nuovi annunci e i nuovi servizi di Quimmo prima di tutti gli altri
Resta aggiornatoAbilio S.p.A. Capitale sociale i.v. Euro 60.975,00 | Sede legale: Via Galileo Galilei n°6, 48018 Faenza (RA) | Codice fiscale e Nr. Iscrizione Registro delle Imprese di Ravenna: 02704840392 | Numero REA RA: 224830 | Società appartenente al Gruppo IVA 'illimity' Partita IVA N. 12020720962 | Società soggetta all’attività di direzione e coordinamento di Banca Ifis S.p.A. | Società iscritta alla sezione A dell'elenco siti web autorizzati dal Ministero della Giustizia alla pubblicità delle aste giudiziarie - p.d.g. 18/05/2022 | Società iscritta al n.68 del Registro Gestori vendite telematiche del Ministero della Giustizia - p.d.g. 01/04/2022 | www.abilio.com | info@abilio.com
Termini e condizioni | Informativa privacy | Informativa cookies | - Copyright © Abilio S.p.A.
Questo sito è protetto da reCAPTCHA e si applicano le Norme sulla privacy e i Termini di servizio di Google.